Home / Rent a home / Rental listings / Rozengracht 37H Zaandam

Rozengracht 37H

Verhuurd per maand

Zaandam

€ 1.450 per maand

Zaandam


Type of property
Appartement

Living area
50 m²

Total
50 m²

Number of rooms
2

About the house

LET OP! Laatste twee nieuwbouwwoningen beschikbaar gelegen in het nieuwbouwproject Rozengracht in het centrum van Zaandam. De woning is direct te betrekken en niet voorzien van een vloer, zodat u zelf een vloer naar keuze kan leggen.

Wonen in een moderne, energiezuinige woning op een unieke locatie? Deze gloednieuwe 2-kamerwoning aan de Rozengracht in Zaandam biedt het beste van twee werelden: rust en ruimte in een eigentijdse woning, midden in het bruisende centrum.

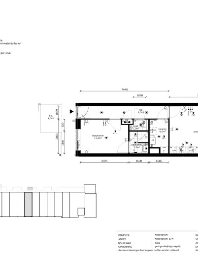
De woning ligt aan de sfeervolle Rozengracht, een karakteristieke straat in het centrum van Zaandam, waar historische charme en moderne ontwikkelingen hand in hand gaan. Alle voorzieningen bevinden zich op loopafstand. Het appartement is gebouwd in 2024 en beschikt over alle gemakken die je als bewoner wenst. De woning is gelegen op de eerste verdieping en voorzien van een ruime hal met toegang tot de woonkamer, het toilet, de slaapkamer en de meterkast. De woonkamer is erg licht door de grote ramen. Aangrenzend aan de woonkamer is de lichte en open keuken. De keuken is voorzien van een elektrische kookplaat, afzuigkap, koelkast, combi-oven en vaatwasmachine. De badkamer is te bereiken vanuit de slaapkamer en voorzien van een wastafel met lades en een ruime douchehoek.

Bijzonderheden Rozengracht
- Per direct beschikbaar
- twee kamer appartement
- Woonoppervlakte ca. 50 m²
- Keuken voorzien van elektrische kookplaat, afzuigkap, combi-oven en vaatwasmachine
- één slaapkamers aanwezig
- Badkamer met wastafel, douche en designradiator
- Separaat toilet
- Voorzien van vloerverwarming
- Balkon op het zuidoosten

Inkomensrichtlijnen
- Om in aanmerking te komen voor deze woning worden er inkomensrichtlijnen gehanteerd. Het bruto maandsalaris dient minimaal 3,5 keer de vermelde huurprijs te zijn
- Er wordt een waarborgsom van 2 keer de huurprijs gevraagd.
- Ben je een zelfstandig ondernemer, gepensioneerd of wil je meer informatie over de inkomensrichtlijnen? Ga dan voor meer informatie naar onze website: vanderlinden.nl/woning-huren/faq
Goed om te weten
- Een huurovereenkomst wordt aangegaan voor minimaal 12 maanden. Na 12 maanden is de huurovereenkomst maandelijks opzegbaar met inachtneming van de gestelde opzegtermijn
- Getoonde foto's dienen als voorbeeld en zijn niet van de woning zelf

Ben je enthousiast geworden over deze woning en voldoe je aan de inkomensrichtlijnen? Kijk dan op vanderlinden.nl/woning-huren om u direct digitaal in te schrijven als woningzoekende.

Bij het selecteren van de meest geschikte kandidaat maken wij enkel gebruik van objectieve selectiecriteria zoals leeftijd, de hoogte van het inkomen in relatie tot de hoogte van de huur, gezinsomvang en soortgelijke criteria. Hierbij maken wij in geen enkele situatie positieve of negatieve uitzonderingen op basis van geslacht, huidskleur, achternaam, geaardheid, afkomst, geloof of etniciteit van de woningzoekende.

Als er meerdere inschrijvingen op een woning zijn, dan zal er op basis van de inschrijfduur een kandidaat worden geselecteerd. Je ontvangt hier dan vanzelf bericht over. Mocht je niets hebben vernomen, dan ben je helaas niet geselecteerd. Je kunt uiteraard altijd contact met ons opnemen waarom er gekozen is voor een andere kandidaat. Wanneer je zoveel mogelijk kans wilt maken op een woning, raden we je aan om meerdere voorkeuren door te geven indien je in meerdere woningen geïnteresseerd bent.

Alle informatie met betrekking tot de woning is met zorg samengesteld. Deze is echter indicatief en er kunnen geen rechten aan ontleend worden.

You will live here

Rozengracht 37H Zaandam

MAP

Plattegronden

Yes, I am interested in this property

Log in to my IDD accountDo you already have an IDD account? Log in now to indicate your interest in this property.

Don't have an IDD account yet? Fill in the form below, we will create an IDD account for you right away.

Your contact details

   

Your income details

Current living situation

Your partner

* required fields