Reeënspoor en Konijnenberg

Verhuurd (belangstellendenlijst)

Zeewolde

€ 955 - € 1.085

Zeewolde

About the house

Beautiful family homes in Zeewolde.

The homes are located on the Reeënspoor and Konijnenberg and offers views of green landscaping. The neighborhood is easily accessible by car and parking spaces are available in front of the door. All homes have a detached shed at the back of the garden. The gardens are located on the sunny south!

Layout:
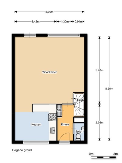
The first floor consists of a garden-oriented spacious living room and a semi-open kitchen equipped with appliances. On the second floor are three generously sized bedrooms. The bathroom has a sink, bathtub and 2nd toilet. The attic is accessible by means of a staircase and can be used as desired. Thanks to double glazing, the house is well insulated. In the kitchen, bathroom and toilet is a mechanical extraction system available.

The environment:

Zeewolde is a quiet and green municipality, located in the province of Flevoland. It is the center of a vast recreational area and therefore ideal for peace seekers and sports enthusiasts.
In addition to excellent facilities for your leisure activities, the heart of Zeewolde has a cozy shopping center with a wide range of stores. The neighborhoods around the center capitalize on the unique location near the harbor, dike, beach and forest.
Zeewolde has several elementary school with various forms of education and faiths and a secondary school with VMBO, HAVO and VWO facilities.

Zeewolde is located opposite Harderwijk and is easily accessible by car from Harderwijk, Amersfoort, Het Gooi, Almere and Lelystad. There are also good bus connections with most places.

- Income Guidelines -
- In order to qualify for this property, it is good to know that we have income guidelines for this. As a single earner, your gross monthly salary (including vacation pay and 13th month) is 4x the listed rent for this property.
- For dual earners, we count the second income for 50%.
- Calculation example: the gross (joint income) monthly income for a house costing € 1,000 per month is thus € 4,000 (1,000 x 4).
- In some cases, a deposit is required.
- Are you self-employed or retired? Then go to our website for more information: vanderlinden.nl/home-rent/faq. Here you will also find more information on income guidelines.

- Would you like to be considered for this property? -
Have you become enthusiastic about this property and meet the income guidelines? Then register via vanderlinden.nl/woning-huren as a house seeker.

In selecting the most suitable candidate we only use objective selection criteria such as age, the amount of income in relation to
the amount of rent, family size and similar criteria.
In doing so, we do not make positive or negative exceptions on the basis of gender, color, last name, orientation, ancestry, religion or ethnicity of the house seeker in any situation.

If there are several similar applications for a property, the system will choose a random file.
You will be notified automatically. If you have not heard anything, unfortunately you have not been selected. You can always contact us to find out why another candidate was selected.
If you want to maximize your chances of finding a property, we recommend that you enter more than one preference if you are interested in more than one property.

- Good to know -
- Photos shown are of a model home and not of the specific home itself.
- The rental agreement is entered into for the duration of 12 months. After this period it is terminable monthly, the notice period is one month.

All information regarding the property has been compiled with care. However, it is indicative and no rights can be derived from it.

You will live here

Zeewolde

MAP

Plattegronden

Yes, I am interested in this property

Log in to my IDD accountDo you already have an IDD account? Log in now to indicate your interest in this property.

Don't have an IDD account yet? Fill in the form below, we will create an IDD account for you right away.

Your contact details

   

Your income details

Current living situation

Your partner

* required fields