Home / Rent a home / Rental listings / Reaalhof 26 Lelystad

Reaalhof 26

Verhuurd per maand

Lelystad

€ 1.020 per maand

Lelystad


Type of property
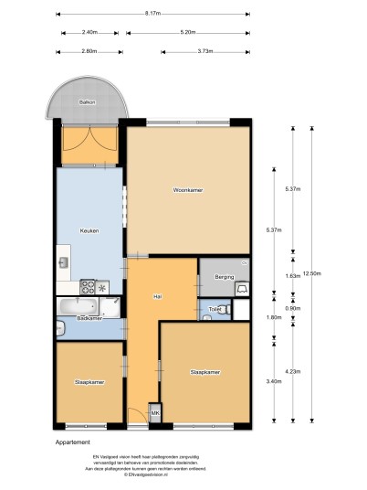
Appartement

Living area
73 m²

Total
73 m²

Number of rooms
3

About the house

3-room apartment available for rent from January 15, 2026.

For rent: very centrally located in Lelystad, with balcony. Literally a few steps from the Lelystad Centrum railway station.

Reaalhof:
Most of the apartments on Reaalhof have balconies facing south and west. The apartments have a practical layout and feature a standard kitchen without built-in appliances and a bathroom in light colors.

All apartments have a separate storage room on the ground floor. The photos shown are for illustrative purposes only and may not be of this apartment.

The surroundings:
The apartments are located in the city center of Lelystad. Lelystad Centrum station is next to the apartments and is therefore within walking distance. From Lelystad Centrum station, you can take the train to Amsterdam or Zwolle. There are also good bus connections to various cities in the area, including Harderwijk and Emmeloord.
The A6 motorway is a short drive away. Harderwijk is also well connected to Lelystad.

There are several supermarkets within walking distance, as well as a dentist, pharmacy, and hospital. Lelystad also has cozy terraces and various restaurants.

- Income guidelines -
• To be eligible for this property, it is important to note that we apply income guidelines. As a single earner, your gross monthly salary (including vacation pay and 13th month) must be 4 times the stated rent for this property.
• For dual-income households, we count the second income at 100%.
• Calculation example: the gross (combined income) monthly income for a property that costs €1,000 per month is therefore €4,000 (1,000 x 4).
• In some cases, a security deposit is required.
• Are you self-employed or retired? For more information, visit our website: vanderlinden.nl/woning-huren/faq. Here you will also find more information about the income guidelines.

- Would you like to be considered for this property? -
Are you enthusiastic about this property and do you meet the income guidelines? Then register as a house hunter at vanderlinden.nl/woning-huren.

When selecting the most suitable candidate, we only use objective selection criteria such as age, income in relation to
the rent, family size, and similar criteria.
We never make positive or negative exceptions based on the gender, skin color, last name, sexual orientation, origin, religion, or ethnicity of the home seeker.

If there are multiple, comparable applications for a property, the system will randomly select one file.
You will be notified of this automatically. If you have not heard anything, unfortunately you have not been selected. You can, of course, always contact us to find out why another candidate was chosen.
If you want to maximize your chances of securing a property, we recommend that you submit multiple preferences if you are interested in several properties.

- Good to know -
• The photos shown are of a model property and not of the specific property itself.
• The lease agreement is entered into for a period of 12 months. After this period, it can be terminated on a monthly basis, with a notice period of one month.

All information regarding the property has been compiled with care. However, it is indicative and no rights can be derived from it.

You will live here

Reaalhof 26 Lelystad

MAP

Plattegronden

Yes, I am interested in this property

Log in to my IDD accountDo you already have an IDD account? Log in now to indicate your interest in this property.

Don't have an IDD account yet? Fill in the form below, we will create an IDD account for you right away.

Your contact details

   

Your income details

Current living situation

Your partner

* required fields