Home / Rent a home / Rental listings / Albert Plesmanring 47 Huis ter Heide

Albert Plesmanring 47

Verhuurd per maand

Huis ter Heide

€ 912 per maand

Huis ter heide


Type of property
Appartement

Living area
60 m²

Total
60 m²

Number of rooms
2

About the house

Let op! Dit betreft een seniorenwoning waar u minimaal 55 jaar of ouder voor dient te zijn. Indien u jonger bent dan 55 jaar, komt u helaas niet in aanmerking voor deze woning.

Kenmerken:

Adres: Albert Plesmanring 85 te Huis ter Heide

Beschikbaar per: direct

Huurprijs: € 912,- per maand

Voorschot servicekosten: € 90,00 per maand

Oppervlakte: 60 m2

Aantal kamers: 2 kamers waarvan 1 slaapkamer

*De foto's zijn van een andere woning binnen het complex maar geven een goede indruk van de afwerking en ruimte.

De woning
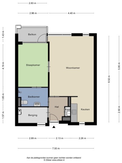
Het appartement bevindt zich op de eerste verdieping van het complex en is voorzien van een woonkamer met open keuken, 1 slaapkamer, badkamer en berging. Via de hal komt u in de woonkamer en keuken. Via de slaapkamer bereikt u het balkon. De badkamer beschikt over een douche, wastafel met spiegel en een toilet.

Het complex 'Intermezzo'
Appartementencomplex ‘Intermezzo’ (voor- en achterzijde) bestaat een totaal van 42 aanleunwoningen en is gelegen in Huis ter Heide.

Aangrenzend aan Intermezzo bevindt zich Woonzorgcentrum Vredenoord. Via een overdekte corridor kunt u dit woonzorgcentrum bereiken en gebruik maken van de voorzieningen die hier worden geboden, zoals het overdekte ontmoetingsplein, de diverse activiteiten en het restaurant.
Met Vredenoord op loopafstand, wordt zelfstandig wonen met zorg op maat mogelijk gemaakt.
Wilt u meer weten over de uitgebreide mogelijkheden voor zorg en dienstverlening? Kijkt u dan eens op de website van Woonzorgcentrum Vredenoord.

Omgeving en bereikbaarheid
De seniorenwoningen aan de Albert Plesmanring bevinden zich in Huis ter Heide, gelegen in de provincie Utrecht. Dit knusse dorp, onderdeel van de gemeente Zeist, biedt een heerlijke mix van rustige omgeving en nabijheid tot belangrijke voorzieningen.

Huis ter Heide staat bekend om zijn prachtige natuurlijke omgeving, omringd door bossen en heidevelden. Het is een ideale locatie voor wie houdt van wandelen, fietsen en genieten van de rustige omgeving. Ondanks de landelijke sfeer zijn er tal van voorzieningen binnen handbereik.

Op korte afstand van het complex vindt u diverse winkels voor uw dagelijkse boodschappen, waaronder een supermarkt en een apotheek. Het dorp is goed bereikbaar met zowel auto als openbaar vervoer, met de A28 en bushalte binnen handbereik. in Huis ter Heide. Op enkele kilometers afstand, vindt u in Den Dolder het nabij gelegen treinstation.

You will live here

Albert Plesmanring 47 Huis ter Heide

MAP

Plattegronden

Yes, I am interested in this property

Log in to my IDD accountDo you already have an IDD account? Log in now to indicate your interest in this property.

Don't have an IDD account yet? Fill in the form below, we will create an IDD account for you right away.

Your contact details

   

Your income details

Current living situation

Your partner

* required fields