Home / Buy a home / Houses for sale / Zwinpad 1 Almere

Zwinpad 1

VERKOCHT ONDER VOORBEHOUD B

AlmereWaterwijk

€ 400.000 k.k.

Almere Waterwijk


Type of property
Eindwoning

Surface
105 m²

Plot
126 m²

Bedrooms
4

Bathrooms
1

Year of construction
1983

About the house

Bright living with a sunny southeast-facing garden — this lovely end-terrace home in Waterwijk offers everything you are looking for in a comfortable family house. Thanks to its favorable corner location, you benefit from extra natural light and a spacious feeling both indoors and outdoors.

This well-maintained family home features four bedrooms, a bright living room with an open kitchen, and a wonderful backyard where you can enjoy the sun from early in the day. Located in a quiet and child-friendly neighborhood, yet centrally positioned close to all daily amenities, this is a place where comfortable living and convenience come together perfectly. Location and Amenities
The house is located in the popular Waterwijk, a very child-friendly neighborhood with many family homes and plenty of play areas. In the immediate vicinity you will find all imaginable amenities. For example, an Albert Heijn supermarket is within walking distance, and there are several primary schools, gyms, and other facilities nearby.

The city center of Almere and Almere Centrum train station can be reached in about five minutes by bike. By car, you can quickly access the A6 motorway via the Hogering, providing easy connections towards Amsterdam or Lelystad. For relaxation and recreation, the beautiful Noorderplassen lakes are nearby — ideal for a walk, sports activities, or enjoying an afternoon by the water.

Layout

Ground Floor
Through the entrance you reach the hallway with access to the storage room, toilet, staircase to the upper floor, and the living room.

The bright living room with open kitchen forms the heart of the home. Large windows allow plenty of natural daylight to enter, creating a warm and pleasant atmosphere. From the living room you have direct access to the backyard. There is also a practical under-stairs storage cupboard for extra storage space.

First Floor
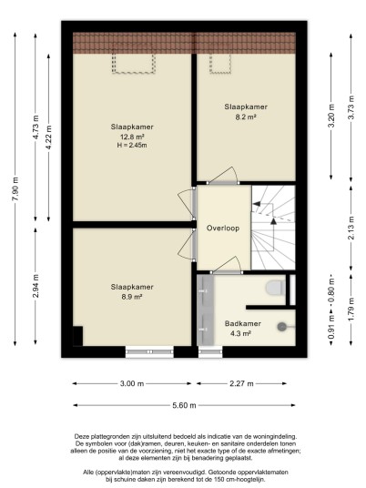
This floor features three bedrooms: two at the rear and one at the front of the house.
The bathroom is fully equipped with a spacious walk-in shower, a vanity unit with double sinks, and a second toilet.

Second Floor
The second floor is an open space that is perfectly suited as a fourth bedroom, home office, or hobby room. This floor also includes the washing machine connection and additional storage space under the sloped roof. A window in the gable provides pleasant natural daylight.

Garden
The backyard faces southeast, allowing you to enjoy the sun early in the day. The garden features a terrace, lawn, and a wooden storage shed. There is also a convenient back entrance (rear access).

Key Features
Living area 105 m²
5 rooms (4 bedrooms)
Energy label B
Southeast-facing backyard
Wooden storage shed and rear access
Child-friendly neighborhood with many nearby amenities
City center and Almere Centrum train station approx. 5 minutes by bike
Recreation opportunities at the Noorderplassen nearby
Transfer date in consultation
Starting bid price

Interested?
Are you looking for a bright and comfortable family home with four bedrooms, a sunny garden, and a central location? Then this could very well be your new home. The property is ideal for families or couples who want to live in a pleasant, child-friendly environment with all amenities within easy reach.

Don’t miss this opportunity — schedule a viewing via Funda or our website. We would be happy to show you the home in person!

Want to know more?

Claudia Jordana
Register Makelaar/Taxateur en Vestigingsmanager.

Zwinpad 1 Almere

MAP

Interested in this property?

What can we do for you?

Contact information