Home / Buy a home / Houses for sale / Wamberg 31-2 Amsterdam

Wamberg 31-2

BESCHIKBAAR C

AmsterdamBuitenveldert, Stadsdeel Zuid

€ 410.000 k.k.

Amsterdam Buitenveldert, Stadsdeel Zuid


Type of property
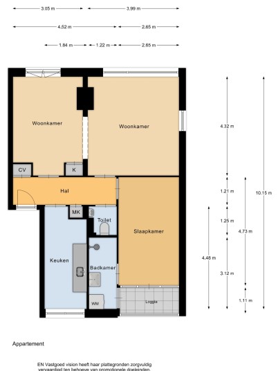
Appartement

Surface
64 m²

Bedrooms
1

Bathrooms
1

Year of construction
1959

About the house

Attention home seekers! A lovely two-room apartment of approximately 64 m², located on the second floor in the popular Buitenveldert neighborhood. The apartment can easily be converted back into a three-room apartment and can be fully customized to your taste. Additionally, the property has two storage rooms: one in the attic and one on the ground floor. Enjoy the lively character of the neighborhood, with all essential amenities within easy reach!

Layout:
Via a well-maintained, shared stairwell, you reach the second floor where the apartment is located. Upon entering, you enter the central hallway, which provides access to several rooms. At the front is the kitchen with a simple kitchen unit and the first bedroom. Both from this bedroom and from the bathroom, you can access the loggia, located to the north.

The bathroom, accessible from the bedroom, is equipped with a shower, sink, and a connection for the washing machine. The toilet with a washbasin is located in a separate room.
At the rear, you’ll find the spacious living room. This space can easily be divided into two rooms if there’s a need for an additional bedroom. Two French doors open to the south-facing French balcony.

Storage rooms:
What makes this property unique is the presence of two spacious storage rooms. On the ground floor, there is a practical storage room of about 7.7 m², ideal for storing bicycles, suitcases, or extra supplies. Additionally, the apartment has an attic storage room of approximately 12.8 m², perfect for items you don’t need daily. So, extra storage space – something that’s rare in the city!

Surroundings & Accessibility:
Wamberg 31-2 is located in the green and quiet Buitenveldert, a beloved neighborhood in Amsterdam-Zuid. The area is characterized by wide avenues, plenty of greenery, and a relaxed atmosphere, while all necessary amenities are within easy reach. Within walking distance, you’ll find the popular Gelderlandplein shopping center, offering a wide range of shops, supermarkets, specialty stores, and dining options. Amstelpark and the Amsterdamse Bos are also nearby, ideal for a walk, sports, or a relaxing day in nature. For families, there are various schools, daycares, and sports facilities in the immediate area.

The accessibility of the property is excellent. Public transport is plentiful, with various tram and bus connections nearby providing a quick link to, among other places, the Zuidas, Station Zuid, and the center of Amsterdam. By car, you are just a few minutes from the A10 ring road, making Schiphol and the main highways to other parts of the country easily accessible. There is usually sufficient parking in the street through the municipality’s permit system.

Homeowners Association (VvE):
The Homeowners Association (VvE) is in a healthy and active state and is professionally managed by Pro VVE Beheer. For this property, including the storage rooms, the monthly service charges are set at €152.43 per month. The administrator takes care of financial and administrative management, as well as providing administrative and technical support.

Ground Situation:
The property is located on municipal leasehold land. The leasehold is prepaid until November 30, 2058. The general provisions for perpetual leasehold from the year 2000 apply to this right.

Key features:
- Living area of 63.9 m² according to NEN2580 measurement certificate;
- Two storage rooms totaling 20.5 m² according to NEN2580 measurement certificate;
- Built in 1959;
- Loggia located to the north;
- Energy label C;
- Service costs of €152.43 per month, contribution for the 2025 fiscal year;
- Leasehold prepaid until November 30, 2058;
- The sale is only intended for primary residence buyers or their children aged 18 and over. The owner/child aged 18 and over must register as the main resident at the address. A restrictive clause on sale and rental will be included in the deed;
- The age, NEN, asbestos, and non-primary residence clauses will be included in the purchase agreement;
- Project notary Schut van Os in Amsterdam;
- Immediate delivery possible.

Want to know more?

Remie Broks
Medewerker Commerciële Binnendienst.

Wamberg 31-2 Amsterdam

MAP

Interested in this property?

What can we do for you?

Contact information