Home / Buy a home / Houses for sale / Tjalk 42 84 Lelystad

Tjalk 42 84

BESCHIKBAAR A

LelystadTjalk

€ 375.000 k.k.

Lelystad Tjalk


Type of property
Tussenwoning

Surface
110 m²

Plot
141 m²

Bedrooms
3

Bathrooms
1

Year of construction
1984

About the house

Central living in the green Tjalk district!

All conceivable amenities and the city center of Lelystad within walking distance, yet living in a green environment and a pleasant residential area.

Living in the "Tjalk" residential area means living with amenities such as a local shopping center, health center, various (primary) schools, and the city center with Lelystad CS bus/train station just a few minutes' walk away.

This family home with on-site parking features four bedrooms, 8 solar panels, and a spacious backyard with an unobstructed view to the south. In short, a home with many possibilities!

Layout
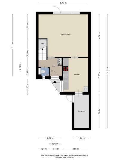
Ground floor
You reach the entrance of the home via the driveway with on-site parking. Entrance, with access to the wall-mounted toilet with washbasin, meter cupboard, door to the living room, and stairs to the upper floor.

Living room
Spacious living room with plenty of natural light, equipped with a storage cupboard under the stairs.

The living room features a door to the backyard and a door to the kitchen at the front of the house. Kitchen

The kitchen is equipped with a four-burner gas hob, combination microwave, and extractor hood.

Through the kitchen, you also have access to the attached brick storage shed, which is also accessible via the front garden of the house.

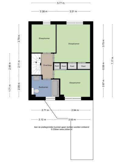
First floor
You reach the first floor via the fixed staircase.
Landing with access to the three bedrooms of varying sizes and the bathroom.

The fully tiled bathroom is equipped with a toilet, washbasin, and a bathtub.
There is an opening window for extra ventilation.

Second floor
You reach the second floor via the fixed staircase.
Landing with the location of the central heating boiler.

This space can still be arranged entirely according to your own wishes and offers the possibility of creating a fourth bedroom.

Garden:
You reach the entrance of the house via the front garden with parking on private property.
In the front garden stands an attached brick storage shed, equipped with electricity.

The backyard has an unobstructed view of the water! The backyard features an electric awning, paving, fencing, and various plants and grass.

Special features:
- Parking on private property;
- Three bedrooms, four possible;
- Energy-efficient due to the 8 solar panels;
- South-facing garden;
- Non-occupancy clause applies;
- No questionnaire part B;
- Energy label A;
- Project notary applicable for the deed of transfer (seller's choice);
- Acceptance by mutual agreement, quick completion possible!

Want to know more?

Arjan Bunschoten
NVM makelaar en Vestigingsmanager.

Tjalk 42 84 Lelystad

MAP

Interested in this property?

What can we do for you?

Contact information