Home / Buy a home / Houses for sale / Rode Zee 31 Zaandam

Rode Zee 31

BESCHIKBAAR C

ZaandamZaandam

€ 450.000 k.k.

Zaandam Zaandam


Type of property
Tussenwoning

Surface
125 m²

Plot
121 m²

Bedrooms
4

Bathrooms
1

Year of construction
1972

About the house

This unique family home with 4 spacious bedrooms is waiting for its new proud owners!

Located in the green and peaceful Zaanse neighborhood of Peldersveld, this generous home offers a living space of approximately 125 m². Perfect for families looking for space, tranquility, and convenience. Enjoy the sunny west-facing garden, ideal for long summer days, while the interior is just as comfortable and stylish. This property also offers great potential to create your dream home! A rare opportunity for those wanting to live in an ideal family-friendly environment.

Location:
Hoornseveld is a sought-after neighborhood for all ages, with plenty of green spaces and quiet streets. There are numerous play areas for children and several primary schools nearby, including a free school. The nearby Gibraltarstraat features a shopping center with two supermarkets and various shops, perfect for your everyday needs. Darwinpark, within walking distance, offers a skatepark, labyrinth, and walking paths, making it ideal for strolling, running, or simply enjoying nature.
By car, you are just 15 minutes from the A10 ring road, and Purmerend is easily accessible via the A7. If you cycle to the city center, you’ll be in the lively Stadshart within 10 minutes, with shops, terraces, and the train station. From there, an Intercity departs every five minutes to Amsterdam, Alkmaar, and Hoorn.

Layout:
Ground Floor:
The property features a driveway, and the unique aspect of this home is that it is a drive-in house. This means you can enter the property either by car, bike, or motorcycle through the garage, or simply through the front door. Upon entering the hallway, you’ll find the meter cupboard and the stairs to the first floor. From the hall, you can also access the integral garage, where you'll find the central heating system, and there’s plenty of space for storage or vehicle parking. Additionally, the ground floor has a large bedroom that opens directly onto the garden.

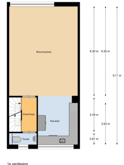
First Floor:
On the first floor, you’ll find an open-plan kitchen with built-in appliances, a modern, tiled toilet, and a spacious living room, also featuring laminate flooring, just like the ground floor. The kitchen offers enough space for a large dining table, and it’s equipped with recessed lighting for a cozy ambiance. Imagine cooking here while the rest of your family, friends, or guests gather around the table. It’s the perfect setting for a memorable evening!

Second Floor:
The second floor offers three bedrooms and a luxurious bathroom, making it ideal for a family. Thanks to the flat roof, no space is wasted. The front of the house features a large bedroom with a built-in wardrobe, while the rear has two bedrooms: one used as a children's room and the other as a dressing room. All bedrooms and the landing are fitted with laminate flooring. The modern bathroom is fully tiled, with a shower cabin that enhances the sense of space. In addition to a large walk-in shower, it includes a cabinet, toilet, and a stylish washbasin.

Garden:
The front garden is paved and can also be used as a driveway, measuring approximately 18 m². The large rear garden, approximately 49 m², faces west and offers enormous potential. The spacious garden has plenty of room for both a dining table and a lounge set. It’s guaranteed to be an ideal spot for relaxation, both during the day and in the evenings!

In short, a home with space, comfort, and endless possibilities! Seize this unique opportunity and make this house your new home!

Special Features:
- Living area approximately 125 m² (measured according to NEN 2580);
- Built in 1972;
- Energy label C;
- Freehold land;
- Heating and hot water via central heating system;
- Parking available on-site;
- Front garden/driveway is approximately 18 m²;
- West-facing rear garden, approximately 49 m²;
- An age clause and non-owner-occupancy clause will be included in the purchase agreement;
- Delivery in consultation;

Want to know more?

Kevin Verkuijlen
Kandidaat Register Makelaar i.o..

Rode Zee 31 Zaandam

MAP

Video

Interested in this property?

What can we do for you?

Contact information