Home / Buy a home / Houses for sale / Palestrinalaan 150 Zwolle

Palestrinalaan 150

VERHUURD

Zwolle

€ 836 per maand

Zwolle


Type of property
Appartement

Surface
55 m²

Plot
2440 m²

Bedrooms
1

Bathrooms
1

Year of construction
2023

About the house

Nu te huur 6 appartementen aan de Preatoriusstraat/ Palestrinalaan in Zwolle!

Samen met Woningstichting SWZ biedt Van der Linden Makelaardij meerdere huurappartementen in het nieuwbouwproject Palestrinalaan aan.
De 1- of 2 slaapkamerappartementen bevinden zich in een appartementengebouw van totaal 37 huurwoningen. Allemaal in de middenhuur-categorie. Dat betekent dat het afhankelijk is van je jaarinkomen, of je in aanmerking komt.

Energiezuinig
De appartementen zijn duurzaam. Zo heeft ieder appartement zonnepanelen, goede isolatie en een energiezuinige installatie. De woningen zijn gasloos, dus koken gaat elektrisch.

Kenmerken
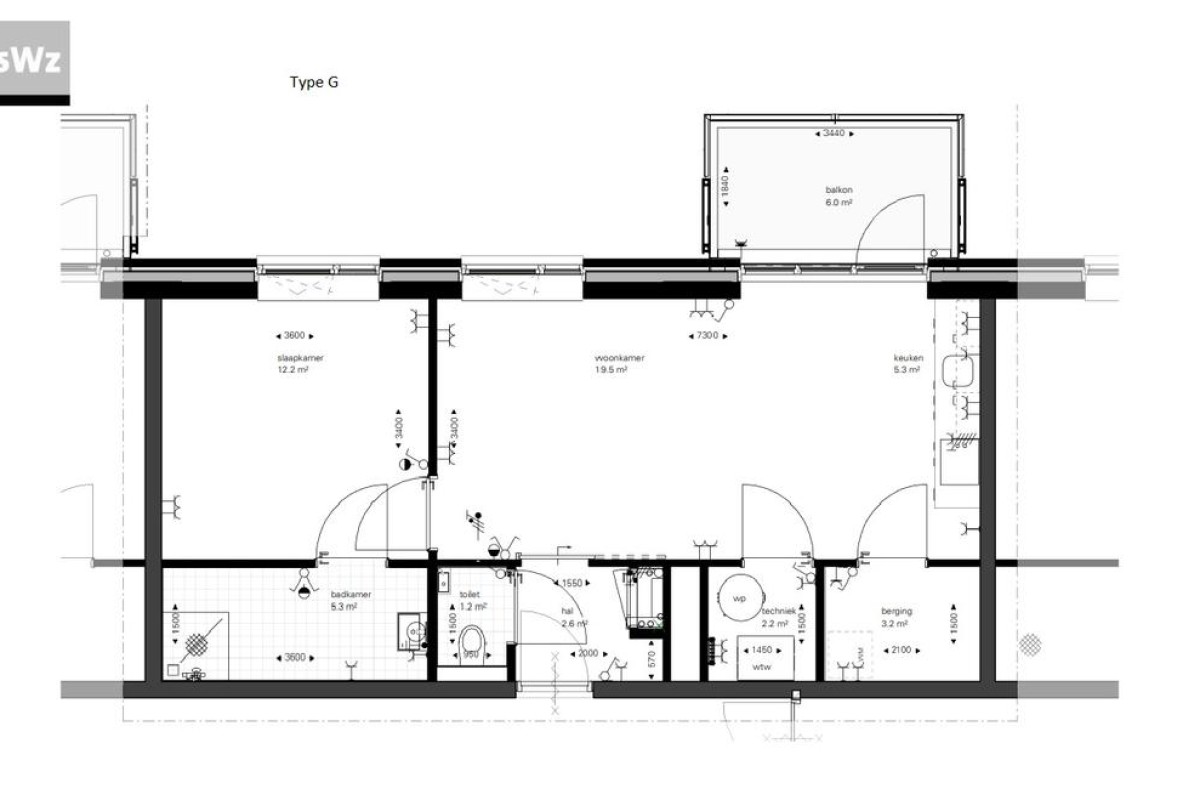
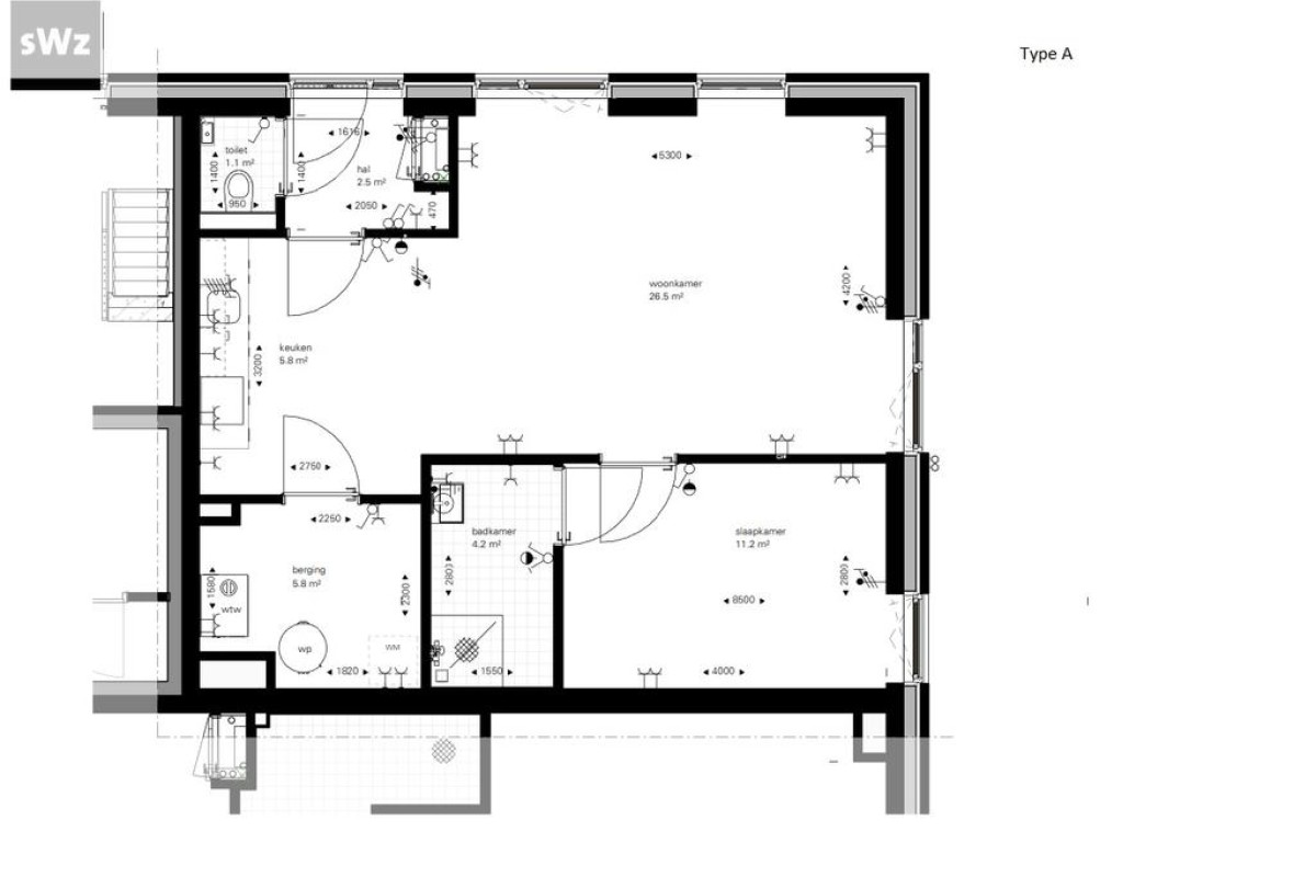
De 1 slaapkamerappartementen zijn ongeveer 55m2 groot. De 2 slaapkamer-appartementen zijn ongeveer 70 m2 groot. Alle appartementen zijn geschikt voor 1 à 2 persoonshuishoudens.
Op de begane grond zit een royale fietsenberging met ruimte voor scooters en scootmobielen. In het appartement zelf zit ook een ruimte voor berging.

Huurprijs
De netto huurprijs voor deze appartementen is €836,14 voor een 1 slaapkamer- appartement en €899,64 voor een 2 slaapkamerappartement. Hier komt nog ongeveer €155,33 bij voor servicekosten (voor o.a. zonnepanelen, verwarming, water en elektra).

Inkomenseis
De appartementen zijn uitsluitend beschikbaar voor eenpersoonshuishoudens met een inkomen vanaf €44.035,- of meerpersoonshuishoudens met een inkomen vanaf
€48.625,-.

Oplevering
Naar verwachting worden de appartementen dit najaar opgeleverd (okt/nov).

Heeft u interesse?
Meld u dan aan via Van der Linden Makelaardij via de mail: info.zwolle@vanderlinden.nl

Toewijzing gaat op volgorde van aanmelding vandaar aanvraag per mail.

Want to know more?

Michel Wessels
Register Makelaar/Taxateur.

Palestrinalaan 150 Zwolle

MAP

Interested in this property?

What can we do for you?

Contact information