Home / Buy a home / Houses for sale / Orteliusstraat 108-1 Amsterdam

Orteliusstraat 108-1

VERKOCHT ONDER VOORBEHOUD D

AmsterdamDe Baarsjes, Amsterdam-West

€ 425.000 k.k.

Amsterdam De Baarsjes, Amsterdam-West


Type of property
Appartement

Surface
48 m²

Bedrooms
2

Bathrooms
1

Year of construction
1935

About the house

Attention house hunters! A light and well-designed 3-room apartment with two balconies and a spacious external storage, located in the sought-after and characteristic De Baarsjes neighborhood.
The apartment combines city comfort with the charm of a quiet, green area. It is the ideal home for both first-time buyers and a small family who want to take advantage of the many amenities in the surrounding area!

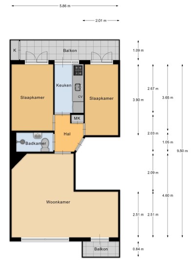
Layout:
Through the communal staircase, you reach the entrance to the apartment on the first floor. From the hallway, most rooms are accessible. The meter cupboard is also located in the hallway.

The living room at the front is bright and spacious, offering enough room for a comfortable seating area and dining area. From the living room, there is access to the balcony, which faces west. From the hallway, you reach the kitchen at the rear of the apartment, which is equipped with a basic kitchen unit and a gas connection. The central heating system is also located in the kitchen. Both the kitchen and the bedrooms have direct access to the apartment-wide balcony, which faces east. There is also a practical storage cupboard on the balcony. The two bedrooms are situated at the rear. The bathroom, which can be accessed from the hallway, includes a shower, washbasin, and toilet.

Additionally, the property has storage on the fourth floor of approximately 7 m².

Surroundings:
The property is ideally located on the quiet and tree-lined Orteliusstraat in the popular and characteristic De Baarsjes neighborhood. This area offers the perfect balance between relaxed living and urban vibrancy. Within a few minutes' walk, you can reach both the beautiful Rembrandtpark and the nearby Erasmuspark. For daily groceries, artisanal shops, and various supermarkets, you can head directly to the nearby Jan Evertsenstraat and Mercatorplein. Moreover, the neighborhood is rich in cozy cafes, with popular spots such as Café Zurich, Bar Tack, and the Foodhallen just a short distance away.

Accessibility:
The accessibility is excellent. Public transport options are plentiful, with several tram and bus connections within walking distance, such as tram 17 and bus 18 to Central Station, and bus 15 to Amsterdam Sloterdijk and Station Zuid. For drivers, the A10 ring road is just a few minutes away, providing quick access to the main roads. The center of Amsterdam is approximately a ten-minute bike ride away.

Homeowners Association (VvE):
The Homeowners Association is healthy and active and is professionally managed by Pro VvE Beheer. The monthly service charges for this property amount to approximately € 204.55 per month: € 146.15 per month for the apartment, € 36.35 per month for the staircase, and € 22.05 per month for the storage (for the fiscal year up to June 30, 2026). The administrator is responsible for financial and administrative management, as well as providing governance and technical support.

Land Lease:
The property is located on municipal leasehold land. The lease is paid in advance until June 30, 2056. The general terms and conditions for continuous leasehold from the year 2000 apply to this right.

Details:
-Living area of 47.7m² (according to NEN2580 measurement certificate);
-External storage space of 6.7m² (according to NEN2580 measurement certificate);
-Built in 1935;
-Central heating system Intergas HRE (built in 2023);
-Leasehold paid in advance until June 30, 2056;
-Two balconies, facing the sunny west and east;
-Energy label D;
-VvE: Service charges are approximately € 204.55 per month; € 146.15 per month for the apartment, € 36.35 per month for the staircase, and € 22.05 per month for the storage (contribution for the fiscal year up to June 30, 2026);
-The sale is only intended for owner-occupation by buyers or their own child aged 18 or older. The owner/own child must register as the main occupant at the address. A sale and rental restriction clause will be included in the deed;
-The age, NEN, asbestos, and non-occupancy clauses will be included in the purchase agreement;
-Project notary: Hartman LMH in Amsterdam;
-Immediate delivery possible.

Want to know more?

Sjors Rooijers
Medewerker Commerciële Binnendienst.

Orteliusstraat 108-1 Amsterdam

MAP

Interested in this property?

What can we do for you?

Contact information