Home / Buy a home / Houses for sale / Louis Davidsstraat 17 Amsterdam

Louis Davidsstraat 17

BESCHIKBAAR A

AmsterdamOsdorp, Stadsdeel Nieuw-West

€ 475.000 k.k.

Amsterdam Osdorp, Stadsdeel Nieuw-West


Type of property
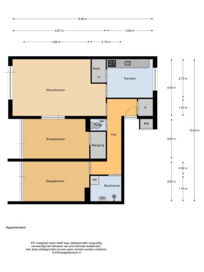
Appartement

Surface
81 m²

Bedrooms
2

Bathrooms
1

Year of construction
1985

About the house

Attention home seekers!
A wonderful three-room apartment located on the ground floor with a spacious garden of approximately 92 m², facing southwest, and equipped with energy label A! Enjoy the lively character of the neighborhood, with all necessary amenities within easy reach.

Layout:
Via the communal staircase, you reach the front door of this ground-floor apartment. The meter cupboard is accessible from the shared hallway. Upon entering, you enter the hallway, which provides access to several rooms. On the right side, there is a practical closet for storing coats and shoes. At the front is the kitchen, which can be furnished according to your preferences. From the kitchen, you also have access to a storage room where the central heating boiler (Intergas HRE, built in 2021) is installed.

At the back, you will find the spacious living room and two bedrooms, one of which has a practical storage space. All rooms are of a good size. From every room, you have access to the lovely garden of no less than approximately 92 m², perfect for summer days.

The bathroom is equipped with a shower, sink, and a connection for the washing machine. The toilet with a small sink is separate from the bathroom and is located in a separate room.

On the ground floor, there is an external storage space of 4.5 m², equipped with an electrical connection, measured according to the NEN2580 measurement certificate.

Surroundings and accessibility:
This apartment is located in the West district, within walking distance of various shops and amenities. The Osdorp shopping center, Theater de Meervaart, Sloterpark, and Sloterplas are just a ten-minute walk away. The area offers plenty of opportunities for walking, cycling, picnicking, swimming, and sailing.

The location of the property is convenient for access to the A9 towards Schiphol and the A10 ring road. Public transport is easily accessible, with tram lines 1 and 17 towards Central Station and Osdorp, and bus lines 19 and 192 towards Sloterdijk Station and Schiphol Airport.

Homeowners Association (VvE):
The Homeowners Association (VvE) is in a healthy and active state and is professionally managed by Pro VvE Beheer. The monthly service costs for this property are set at €192.33 per month. The administrator takes care of financial and administrative management, as well as governance and technical support.

Ground situation:
The property is located on municipal leasehold land. The leasehold is paid in advance until April 30, 2036. To give an indication of the expected costs after April 30, 2036, a leasehold analysis has been prepared for this property (see Move.nl). The General Provisions for continuous leasehold from 2000 apply to this right.

Special features:
- Living area of 81.2 m² according to NEN-2580 measurement report;
- External storage of 4.5 m² according to NEN-2580 measurement report;
- Spacious garden of approximately 92 m² facing southwest;
- Built in 1985;
- Energy label A;
- VvE contribution €192.33 per month, contribution for fiscal year 2026;
- Leasehold prepaid until April 30, 2036, leasehold analysis available on Move.nl;
- The sale is only intended for primary residence by the buyer or their own child aged 18 or older. The owner/child aged 18 or older must register at the address as the primary resident. A restriction on sale and rental will be included in the deed;
- Clauses regarding age, NEN, asbestos, and non-owner occupation will be included in the purchase agreement;
- Project notary: Hartman LMH in Amsterdam;
- Immediate possession possible.

Want to know more?

Remie Broks
Medewerker Commerciële Binnendienst.

Louis Davidsstraat 17 Amsterdam

MAP

Interested in this property?

What can we do for you?

Contact information