Home / Buy a home / Houses for sale / Lire 4 Dronten

Lire 4

VERKOCHT B

Dronten

€ 619.000 k.k.

Dronten


Type of property
Vrijstaande woning

Surface
166 m²

Plot
450 m²

Bedrooms
3

Bathrooms
2

Year of construction
2002

About the house

Deze woning met wolfskap, die zorgt voor een vleugje landelijke charme, is gelegen op een prachtige locatie. De woning beschikt over een ruime oprit met carport en voldoende parkeergelegenheid. Deze is bereikbaar via een doodlopende weg, die uitsluitend door de buren wordt gebruikt. Recht tegenover de woning ligt een fraai park met speeltuin. Daarnaast heeft de woning een goede verbinding met het centrum van Dronten. Op loopafstand bevindt zich winkelcentrum Dronten-West, waar u onder andere een Albert Heijn, Etos en Lidl vindt voor al uw dagelijkse boodschappen.

Het perceel heeft een oppervlakte van 450 m² en beschikt over een onderhoudsarme, beschutte tuin met een vrijstaande houten overkapping en berging. De woning is rondom te belopen, wat het geheel extra praktisch maakt.
De woning zelf is ruim opgezet en beschikt over een grote woonkamer met erker, een eetgedeelte met een verlaagde erker en openslaande deuren naar de tuin. Dankzij de vele ramen is er vrij uitzicht op het omliggende groen en valt er veel natuurlijk licht binnen.
De keuken kan een opfrisbeurt gebruiken, maar de ruimte biedt volop mogelijkheden om hier een eigentijdse keuken te realiseren. Op de foto’s is alvast een inspirerende aanzet te zien: zo zou het ook kunnen worden. Aangrenzend aan de keuken bevindt zich de bijkeuken met aansluitingen voor wasmachine en droger.
Wat deze woning werkelijk uniek maakt, is de ruime slaapkamer met badkamer en suite. Openslaande deuren zorgen hier voor verkoeling op warme zomerdagen. Mede hierdoor mag deze woning met recht levensloopbestendig worden genoemd.

Indeling:
Begane grond: entree met carport, ruime hal met vide, garderobe, meterkast, toiletruimte met hangcloset en fonteintje, trapopgang naar de eerste verdieping. Doorgang naar de L-vormige woonkamer voorzien van twee erkers en een gashaard.
Aan de achterzijde van de woning is een brede eetkamer gelegen met aansluitend een keuken in hoekopstelling. De keuken is voorzien van inbouw-apparatuur. Naast de keuken biedt een deur toegang tot de bijkeuken waar de wasmachine en droger staan opgesteld. Grenzend aan de tuin is de prachtig grote slaapkamer met aangrenzende badkamer gelegen. De badkamer beschikt over een 2 wastafels, een hoge kast en inloopdouche. Vanuit de slaapkamer en vanuit de eetkamer is de achtertuin bereikbaar via openslaande deuren.
Langs beide zijden van de woning is de achtertuin bereikbaar, de tuin is onderhoudsvriendelijk aangelegd. In de tuin staat een vrijstaande berging met overkapping. Aan de voorzijde is een oprit aangelegd welke deels overdekt is middels een carport. De woning beschikt aan de voorzijde tevens over een inpandige berging met openslaande houten deuren.

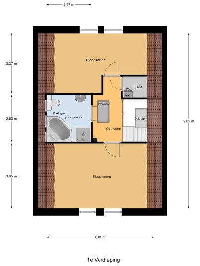
Eerste verdieping: een groot dakraam verlicht de ruime overloop met aansluitend 2 slaapkamers, een bergruimte en de tweede badkamer. De slaapkamer aan de voorzijde is over de gehele breedte van de woning gesitueerd en daardoor zeer ruim. De tweede slaapkamer aan de achterzijde is ook over de gehele breedte van het huis en wordt op dit moment gebruikt als kantoor. Naast deze kamer bevindt zich een bergruimte waar tevens de nieuwe c.v.-ketel opgesteld is. De badkamer beschikt over een dakkapel, wat zorgt voor extra ruimte en een prettige lichtinval. Verder is de badkamer voorzien van een hoekbad, een separate douchecabine, een tweede toilet en een wastafel.

Tweede verdieping: vlizotrap naar de bergzolder.

* Bouwjaar 2002: perceelgrootte: 450m²
* Autovrij gelegen met vrij uitzicht over groen
* Voorzien van een dakkapel en 2 erkers
* Slaapkamer en badkamer op de begane grond (levensbestendig)
* Ideale ligging nabij winkelcentrum Dronten-west
* Openslaande tuindeuren naar de tuin vanuit de eetkamer en de slaapkamer
* In 2025 vernieuwde c.v.-ketel (Remeha HR)
* Inpandige bijkeuken
* Aanvaarding in overleg, snelle levering mogelijk

Deze woning wordt momenteel bewoond door een man voor wie het onderhoud van zowel de tuin als het huis te zwaar is geworden. Het huis is eenvoudigweg te groot. Meneer heeft hier altijd samen met zijn vrouw met veel plezier gewoond, in een hechte en saamhorige buurt. Hij gunt deze mooie plek dan ook graag aan nieuwe bewoners die het huis met zorg willen onderhouden en er opnieuw liefde aan willen geven.

* Energielabel B
* Makelaardij Van der Linden
* Bij verkoop hanteren wij een NVM koopakte

Het verkoopproces verloopt in zijn geheel via MOVE.nl en daarmee ook het biedingsproces. Biedingen dienen via MOVE te worden ingediend. U ontvangt op het moment dat u een afspraak voor bezichtiging maakt, inloggegevens voor een MOVE account. Via dat account kunt u alle benodigde informatie en documenten inzien en, indien gewenst, een bod uitbrengen.
Deze informatie is door ons met de nodige zorgvuldigheid samengesteld. Onzerzijds wordt echter geen enkele aansprakelijkheid aanvaard voor enige onvolledigheid, onjuistheid of anderszins, dan wel de gevolgen daarvan. Alle opgegeven maten en oppervlakten zijn indicatief.

Want to know more?

Bart Wijnands
Directeur en Register Makelaar/Taxateur.

Lire 4 Dronten

MAP

Interested in this property?

What can we do for you?

Contact information