Home / Buy a home / Houses for sale / J.M. den Uylstraat 66 Amsterdam

J.M. den Uylstraat 66

BESCHIKBAAR A

AmsterdamGeuzenveld, Amsterdam-West 

€ 380.000 k.k.

Amsterdam Geuzenveld, Amsterdam-West 


Type of property
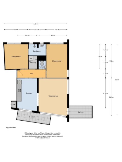
Appartement

Surface
72 m²

Bedrooms
2

Bathrooms
1

Year of construction
1991

About the house

Discover this spacious 3-room apartment of approximately 72 m² in the green heart of Amsterdam Nieuw-West, located on the first floor, with an energy label A and two sunny south-facing balconies. Perfect for those seeking comfort and tranquility with city convenience within reach.

Layout:
The entrance of the building exudes light and space, thanks to the large windows. A neat staircase leads you to the apartment on the first floor.

First Floor:
Through the entrance, you enter the central hall of the apartment, from where almost all rooms are accessible.
At the front, you will find the spacious and bright living room with a semi-open kitchen. From the kitchen, you access the first balcony, which is south-facing. Additionally, the living room offers access to the second balcony, also conveniently south-facing.
The hall leads to two spacious bedrooms at the rear of the apartment, both with access to the bathroom. The bathroom is equipped with a shower and sink. From the hall, you also access the separate toilet with a washbasin, as well as the internal storage room, which contains the central heating boiler, mechanical ventilation, and a washing machine connection.

On the ground floor, there is an external storage room of over 3 m² with lighting, ideal for storing bicycles or other items. This storage room is directly accessible from the street.

Surrounding Area:
The property is located in a green and spacious residential area in Amsterdam Nieuw-West, with shops, schools, sports facilities, and restaurants within short distance. The popular Sloterpark and Sloterplas are practically around the corner and offer plenty of opportunities for relaxation, sports, and recreation. Here, you live peacefully and surrounded by greenery, with all daily amenities within easy reach.

Accessibility:
The accessibility is excellent. Via the A10, A5, and N200 highways, you are quickly on your way to the city center, Haarlem, or Schiphol. By bike, you can reach Westerpark in about 15 minutes, and the city center is also easily accessible. In addition, various tram and bus connections provide a quick link to, among others, Station Sloterdijk and Amsterdam Central. The bus stop is right in front of the door.

Homeowners Association (VvE):
The VvE is in a healthy and active state and is professionally managed by VvE Metea.
For this apartment and the external storage room, the total monthly service costs are set at €183.92 per month; €175.46 per month for the apartment and €8.46 per month for the storage room (contribution for the 2026 financial year). The administrator is responsible for financial and administrative management, as well as governance and technical support.

Ground Situation:
The property is located on municipal leasehold land. The ground lease is paid in advance until February 15, 2042. The General Provisions for Continuous Leasehold from the year 2000 apply to this right.

Details:
-Living area: 71.9 m² (NEN 2580 measurement report available);
-Storage on the ground floor: 3.5 m² (NEN 2580 measurement certificate available);
-Year of construction: 1991;
-Two spacious south-facing balconies;
-Energy label A;
-Bus stop right in front of the door with a direct connection to Amsterdam Central;
-Central heating boiler: Intergas HRE (year of manufacture: 2022);
-VvE contribution €183.92 per month;
-Ground lease paid in advance until February 15, 2042;
-The sale is only intended for primary residence by buyers or their children aged 18 and over. The owner or their child
aged 18 and over must register as the primary resident at the address. A sale and rental restriction clause will be
included in the deed;
-The deed will include a sale and rental restriction clause;
-The deed will include clauses for age, NEN measurements, asbestos, and non-owner-occupation;
-Project notary: Schut van Os Notarissen in Amsterdam;
-Delivery in consultation.

Want to know more?

Sjors Rooijers
Medewerker Commerciële Binnendienst.

J.M. den Uylstraat 66 Amsterdam

MAP

Interested in this property?

What can we do for you?

Contact information