Home / Buy a home / Houses for sale / Icarusstraat 17 Almere

Icarusstraat 17

VERKOCHT ONDER VOORBEHOUD A

AlmereHomeruskwartier

€ 625.000 k.k.

Almere Homeruskwartier


Type of property
Tussenwoning

Surface
164 m²

Plot
120 m²

Bedrooms
4

Bathrooms
1

Year of construction
2017

About the house

Light, space, and luxury come together in this beautiful family home in the sought-after Homeruskwartier!

At Icarusstraat 17 in Almere, you will find a home where style and comfort go hand in hand. With a generous living area of 164 m², an extended living room, low-maintenance uPVC window frames, and a modern finish, this property offers everything you are looking for. The spacious kitchen with cooking island, the stylish cinema wall with electric fireplace, and four (potentially five) bedrooms make this the perfect home for families or for those who want to combine living and working from home. Location, neighborhood and amenities

The house is located in Homeruskwartier, a family-friendly neighborhood in Almere Poort with many young families and a calm, modern atmosphere. Supermarkets, schools, sports facilities, and playgrounds for children are all within short distance.
Almere Poort train station is nearby, and the main roads towards Amsterdam, Utrecht, and ’t Gooi can be reached within minutes. Here you enjoy the peace of a residential area while still benefiting from excellent connections and urban amenities.

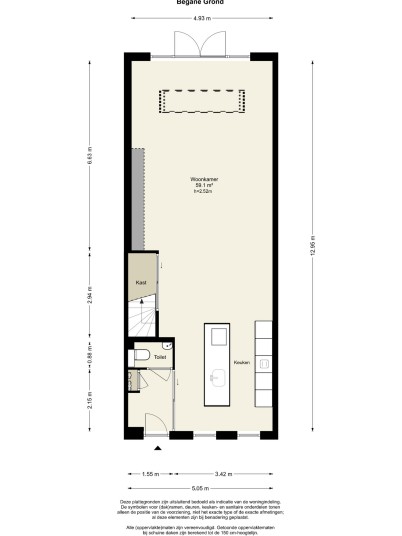
Layout of the property

Ground floor
The entrance leads to a hall with a meter cupboard and toilet. From here, a glass door opens into the kitchen and the bright, spacious living room.
The extension added in 2022 makes the living space truly special. Thanks to the skylight and French doors, an abundance of natural light flows into the home, creating a warm and welcoming atmosphere. The living room is finished with plastered walls and ceilings and laminate flooring.
The cinema wall with electric fireplace adds extra ambiance and comfort, perfect for relaxing or enjoying cozy evenings.
At the front of the house you will find the open-plan kitchen with a cooking island, equipped with modern built-in appliances: Induction hob, Combination oven, Refrigerator, Freezer, Dishwasher, Extractor hood.
The kitchen offers plenty of workspace and storage and forms a wonderful place to cook, enjoy breakfast, or gather with family and friends.

First floor
The first floor features three bright bedrooms, all neatly finished with laminate flooring and plastered walls.
The bathroom is modern and comfortable, equipped with: A spacious walk-in shower, washbasin cabinet with double, faucet, toilet, illuminated mirror, towel radiator. A perfect place to relax and start your day refreshed.

Second floor
The second floor offers surprisingly generous space thanks to straight walls and a high ridge. Here you will find a spacious master bedroom and a separate walk-in wardrobe with connections for a washing machine and dryer.
This room can easily be converted into a fifth bedroom, workspace, or hobby room, depending on your needs.

Garden
The southwest-facing backyard invites you to enjoy the sun and tranquility. With a rear entrance and a detached wooden storage shed, this is a well-maintained, practical, and sunny outdoor space—perfect for a lounge set or a barbecue with friends.

Key features
Year of construction: 2017
Living area: 164 m²
Low-maintenance uPVC window frames
Heating and hot water via district heating
Energy label A
Bidding-from price
Delivery in consultation

This home is perfect for families or couples who appreciate light, space, and modern luxury in a young and vibrant neighborhood. The generous living space and sunny garden make it a place where you can enjoy comfortable living for many years.

Schedule a viewing quickly via Funda or our website and discover the atmosphere and possibilities of Icarusstraat 17 for yourself. Who knows, this may soon become your new home!

Want to know more?

Claudia Jordana
Register Makelaar/Taxateur en Vestigingsmanager.

Icarusstraat 17 Almere

MAP

Video

Interested in this property?

What can we do for you?

Contact information