Home / Buy a home / Houses for sale / Fellinilaan 306 Almere

Fellinilaan 306

BESCHIKBAAR A+

AlmereFilmwijk

€ 485.000 k.k.

Almere Filmwijk


Type of property
Appartement

Surface
115 m²

Bedrooms
2

Bathrooms
1

Year of construction
1998

About the house

Very spacious and move-in-ready apartment with a beautiful view over the Weerwater!

Located in a fantastic spot in the popular Filmwijk, this spacious three-room apartment is on the second floor of the small-scale apartment complex “Wijde Blik.” With a living area of 115 m², this apartment offers plenty of space, a living room with lots of natural light from large windows, a new bathroom (October), and two spacious bedrooms. The sunny southwest-facing balcony offers views of both the Weerwater and the Lumièrepark.

The location is ideal, with recreational opportunities and small beaches around the Weerwater, the Lumièrepark, and Almere Centrum city center nearby (within walking distance). Additionally, the bus stop and supermarket are just around the corner. The A6 and A27 highways are a few minutes' drive away.

The view from this apartment remains fantastic. Come and see it for yourself!

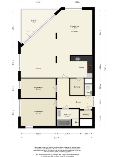
Layout:
Through the closed central entrance with intercom system, you have access to the storage room, and the stairs or lift to the upper floors.

Second Floor:
Entrance/hallway with meter cupboard, wardrobe closet, separate toilet, and access to the two bedrooms, bathroom, and the spacious and bright living room with a semi-open kitchen.

Living Room:
The living room has several large windows, allowing natural light to flood the space. There is more than enough room for both a comfortable seating area and a large dining table, perfect for intimate dinners or cozy evenings with children, grandchildren, or friends. Adjacent to the living room is the spacious balcony, facing the sunny southwest. This is a wonderful spot to enjoy the outdoors in the summer while overlooking the Weerwater and watching the boats pass by.

The living room leads into the L-shaped kitchen, which is equipped with plenty of storage space in both the lower and upper cabinets. The kitchen also has built-in appliances, such as a cooktop, extractor hood, combi microwave, dishwasher, and a fridge-freezer. Adjacent to the kitchen is the practical storage room or utility room, which not only accommodates the washing machine connection but also provides ample space for additional items.

The floor is covered with a beautiful PVC herringbone floor, adding warmth and character to the space.

Bedrooms:
The apartment has two bedrooms of varying sizes. Both bedrooms offer enough space for a double bed and a wardrobe.

Bathroom:
The completely renovated bathroom features light tiling up to the ceiling, a washbasin with a mirrored cabinet, a bathtub, and a walk-in shower.

Special Features:
The listed price is the "starting price."
Stunning views over the Weerwater and the Lumièrepark.
Southeast-facing balcony.
The building is equipped with a lift installation.
Almere Centrum is a short distance away.
Energy label A+.
The exterior of the building has recently been painted (2025).
Estimated service charges €224 per month.
Connected to district heating.
Built in 1998, living area 115 m².
Public parking available in front of the complex.
Delivery in consultation / could be quick.
Project notary: PVM Notarissen.

Request a Viewing?
You can sign up for a viewing via Funda or our website. Applications are processed in the order they are received.

Want to know more?

Claudia Jordana
Register Makelaar/Taxateur en Vestigingsmanager.

Fellinilaan 306 Almere

MAP

Video

Interested in this property?

What can we do for you?

Contact information