Home / Buy a home / Houses for sale / Fellinilaan 262 Almere

Fellinilaan 262

BESCHIKBAAR A

AlmereFilmwijk

€ 419.000 k.k.

Almere Filmwijk


Type of property
Appartement

Surface
95 m²

Bedrooms
2

Bathrooms
1

Year of construction
1998

About the house

Open house!
You are warmly invited to view this property on Tuesday, March 17th, between 3:00 PM and 5:30 PM. We kindly ask you to register for the viewing via the 'Schedule a Viewing' button. Before the viewing, you will receive access to the Move account.

Spacious Corner Apartment with 2 Bedrooms, Located on the Weerwater!

Situated in the popular Filmwijk, this generously sized three-room corner apartment is beautifully located on the first floor of the modern apartment complex “Wijds Zicht”, offering stunning panoramic views over the Weerwater. From the spacious 9 m² balcony, you can enjoy the sun as well as the lively atmosphere of people walking and cycling along the waterfront. This attractively located apartment has a living area of 95 m². The location is excellent, close to all amenities such as the Stadshart of Almere Centrum, public transport, a supermarket, a health center, and the main access roads to the A6 and A27 motorways. In the adjacent Lumière Park, you can enjoy walking and cycling along dedicated bike paths. The panoramic view is truly what makes this apartment unique. Come and experience it for yourself!

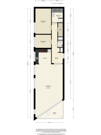
Layout:

Access to the building is via the secured central entrance with doorbell panel, providing entry to the storage units and access to the stairwell or elevator to the upper floors.

First floor:
Entrance/hallway with meter cupboard, separate toilet, and access to the two bedrooms, bathroom, and the spacious, bright living room with a door leading to the balcony. Upon entering the living room, your attention is immediately drawn to the breathtaking view. The living room is very spacious and provides access to the sunny 9 m² northwest-facing balcony.

The spacious corner kitchen offers an outside view and is equipped with an induction cooktop, combination oven/microwave, dishwasher, recirculation hood, and fridge-freezer combination. The kitchen is finished in a light color scheme with a black synthetic worktop and offers ample storage space thanks to the many cupboards and drawers. Large windows ensure plenty of natural light in both the kitchen and living room.

The two bedrooms measure 14.2 m² and 7.3 m² and are located on the cooler northeast side of the building.

The simple bathroom features a bathtub, shower cabin, and washbasin. With a size of 5.4 m², it offers sufficient space to create a practical walk-in shower and, for example, a vanity unit with drawers.

The convenient storage cupboard houses the washing machine connection and provides additional storage space.

Particulars:
Offered with a “bidding from” price
2 bedrooms
Private storage unit on the ground floor
Energy label A
Delivery in consultation, quick transfer possible
Project notary, PVM Notarissen

Want to know more?

Claudia Jordana
Register Makelaar/Taxateur en Vestigingsmanager.

Fellinilaan 262 Almere

MAP

Video

Interested in this property?

What can we do for you?

Contact information