Home / Buy a home / Houses for sale / Duinbeek 23 Lelystad

Duinbeek 23

VERKOCHT ONDER VOORBEHOUD A+

Lelystad

€ 500.000 k.k.

Lelystad


Type of property
Geschakelde woning

Surface
173 m²

Plot
493 m²

Bedrooms
4

Bathrooms
1

Year of construction
2001

About the house

Ruime schakelde gezins HOEKwoning op een groot perceel van 493 m2

Deze woning, die u volledig kunt inrichten op basis van uw eigen woonwensen, beschikt onder meer over een multifunctionele ruimte op de begane grond (voormalige garage), een tuingerichte woonkamer met aansluitend een overkapping.
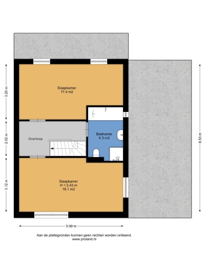
Op de eerste verdieping bevinden zich twee ruime slaapkamers, terwijl de tweede verdieping is uitgerust met een hobbyruimte/kantoorruimte, een derde slaapkamer en een dakterras. De achtertuin, gelegen op het oosten, is ruim en biedt veel privacy.

De woning is bijzonder energiezuinig dankzij de 13 zonnepanelen en de aanwezige boiler. Bovendien beschikt de woning over energielabel A+, wat bijdraagt aan lage energiekosten en duurzaam wooncomfort. Indeling

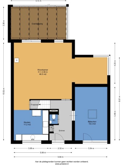
Begane grond
Entree, hal met toegang tot de multifunctionele ruimte, meterkast met glasvezelaansluiting, vrij-hangend toilet met fonteintje, trap naar de verdiepingen en de deur naar de woonkamer.

De vloer van de begane grond is voorzien van een natuurstenenvloer van kwartsiet.

Woonkamer
De tuingerichte woonkamer is een comfortabele ruimte, uitgerust met een duo-airco (voor zowel koelen als verwarmen) en een gezellige houtkachel, waardoor het hele jaar door een aangename temperatuur gegarandeerd is. De grote schuifpui biedt directe toegang tot de lichte en uitnodigende tuinkamer, waar u volop van het buitenleven kunt genieten, ongeacht het seizoen. De woonkamer biedt voldoende ruimte voor een royale zithoek en een ruime eettafel, perfect voor zowel ontspanning als het ontvangen van gasten. Het is de ideale plek om te ontspannen en te genieten van de serene sfeer die deze ruimte uitstraalt.

Keuken
De keuken is aan de voorzijde van de woning gesitueerd en kan naar eigen smaak worden vervangen. Het is een praktische ruimte, maar biedt tegelijkertijd de mogelijkheid om deze verder te moderniseren en in te richten volgens de laatste trends en uw persoonlijke voorkeuren.
De keuken is voorzien van een koelkast, aansluiting voor een vaatwasser, inductiekookplaat (waarvan 2 pitten werken) en een afzuigkap.

Voormalige garage / multifunctionele ruimte
Deze voormalige geïsoleerde garage is omgevormd tot een veelzijdige, lichte ruimte, dankzij de toevoeging van een vaste pui met een raam en een deur. Deze pui vergroot niet alleen de functionaliteit, maar brengt ook extra natuurlijk licht naar binnen, waardoor de ruimte ideaal is voor diverse doeleinden, zoals een werkplek, een creatieve hobbykamer of zelfs als een professioneel bedrijf aan huis. De ruimte is verder uitgerust met een praktische lichtkoepel die extra daglicht binnenlaat en een uitstortgootsteen met zowel warm als koud water, wat de ruimte bijzonder handig maakt voor verschillende activiteiten. Hier vindt u ook de opstelplaats voor de boiler.
Er lopen leidingen en een afvoer terug vanaf het huis tot onder de garage, wat een mogelijkheid biedt tot het realiseren van bijvoorbeeld een atelier of mantelzorgwoning.

Deze multifunctionele ruimte biedt talloze mogelijkheden en is een waardevolle aanvulling op uw woning of bedrijf. De vloer is voorzien van een natuurstenenvloer van kwartsiet.

Eerste verdieping
Via de vaste trap bereikt u de eerste verdieping, waar u wordt verwelkomd door een overloop met toegang tot de slaapkamers en de badkamer.

Slaapkamers
In totaal zijn er twee zeer ruime slaapkamers: een woning brede slaapkamer aan de voorzijde en een woning brede slaapkamer aan de achterzijde.
De slaapkamer aan de achter zijde is voorzien van een duo-airco (voor zowel koelen als verwarmen)

Badkamer
De badkamer is voorzien van een ligbad, douche, vrij-hangend toilet en een wastafelmeubel.

De vloer van de eerste verdieping is voorzien van woongrind.

Tweede verdieping
Via de vaste trap bereikt u de tweede verdieping, waar u wordt verwelkomd door een ruime overloop. Hier bevinden zich de aansluitingen voor de wasmachine en de wasdroger, evenals de opstelplaats van de warmte-terugwin-unit. De overloop biedt voldoende ruimte om een werkplek te creëren, ideaal voor thuiswerken of een rustige studiehoek.

Daarnaast vindt u op deze verdieping de vierde slaapkamer, die perfect geschikt is voor diverse doeleinden. Via een deur heeft u toegang tot het dakterras, een mooie buitenruimte die uitnodigt tot ontspanning en het genieten van de frisse lucht.

De vloer van de tweede verdieping is voorzien van woongrind.

Tuin
Via de oprit met parkeergelegenheid op eigen terrein bereikt u de entree van de woning. In de zij-tuin staat een houten berging. Er is voldoende ruimte voor het stallen van een camper, caravan of boot.

De zeer ruime tuin, gelegen op het oosten, biedt een ideale plek om te ontspannen en te genieten van het buitenleven. De tuin is zorgvuldig aangelegd en voorzien van gevarieerde bestrating, die zorgt voor een nette en praktische indeling. Diverse terrassen bieden voldoende ruimte voor zowel gezellige eetmomenten als rustige zitjes om van de tuin te genieten, afhankelijk van het seizoen en de zonstand.

Het groen in de tuin is weelderig, met een vijver, zorgvuldig geplante struiken, bomen en bloemen die de tuin het hele jaar door kleur en leven geven.

Als extra luxe zijn er een op hout gestookte hot tub en een sauna aanwezig, perfect voor ontspanning na een lange dag of voor een gezellig moment met familie en vrienden.
Deze twee wellnessvoorzieningen zijn ter overname, wat de tuin nog aantrekkelijker maakt voor de toekomstige bewoners die op zoek zijn naar een eigen wellnessoase in hun tuin.

Achter in de tuin staat een zelfgebouwde garage van betonplaten, voorzien van een kanteldeur.

Bijzonderheden:
- Ruime gezinswoning, met hoekligging op een groot perceel;
- Parkeren op eigen terrein, ideaal voor een camper, caravan of boot;
- Multifunctionele ruimte op de begane grond;
- Drie slaapkamers;
- Energielabel A+ en 13 zonnepanelen;
- Er lopen leidingen en een afvoer terug vanaf het huis tot onder de losse garage voor als men daar een atelier of mantelzorgwoning wil realiseren:
- Het betreft een bieden vanaf prijs.

Want to know more?

Arjan Bunschoten
NVM makelaar en Vestigingsmanager.

Duinbeek 23 Lelystad

MAP

Video

Interested in this property?

What can we do for you?

Contact information