Home / Buy a home / Houses for sale / Dettifossstraat 264 Almere

Dettifossstraat 264

VERKOCHT A+

AlmereAlmere-Poort

€ 585.000 k.k.

Almere Almere-Poort


Type of property
Appartement

Surface
123 m²

Bedrooms
2

Bathrooms
1

Year of construction
2019

About the house

Located on the ground floor of Villa Cascade, this bright and spacious three-room apartment of approximately 127 m² features a generous 35 m² conservatory and a carport. Thanks to its ground-floor location, there are no stairs to climb, making this apartment an excellent choice for single-story living. Cycle or walk to Almeerderstrand, the supermarket, primary school, DUIN (a public transport hub), and Almere Stad city center. Children can play happily in Cascadepark, home to the iconic pink Het Klokhuis building. The neighborhood is diverse, with apartments and houses in various styles focused on sustainable living.

Apartment building layout:
Villa Cascade is a stylish apartment building with stepped terraces and large windows. The exterior facades, made of terracotta-red bricks combined with wood, have a Mediterranean feel and were designed by Cross Architects. They were also involved as architects for Rotterdam Central Station and Groningen Station. The building's elevated position in the park immediately draws attention.

The apartment includes a (bicycle) storage unit and a carport at the front of the building. The central entrance features a doorbell panel, intercom, mailboxes, and an elevator. The building also offers parking for visitors and a courtyard garden with benches where residents can socialize. The surrounding garden borders not only the water but also the expansive park.

Apartment:
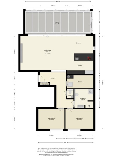
Entrance hall leading to the spacious living room with open-plan kitchen, ample storage, bathroom, separate toilet, and two bedrooms of varying sizes. The living room with open-plan kitchen is a beautiful and bright space, featuring numerous large windows, sliding doors leading to the conservatory, and beautiful PVC flooring with underfloor heating. The dining area offers ample space for a large dining table, and the sitting area features a cinema wall and is spacious without making the living room feel cluttered. Sliding doors connect the living room and kitchen to the spacious conservatory (approx. 35 m²). The kitchen, with a composite countertop, features a long wall unit equipped with a steam oven, combination microwave, fridge/freezer, a coffee corner, and ample storage space in both upper and lower cabinets. In addition to the wall unit, the kitchen also has a cooking/sink island with a Bora cooktop and integrated extractor hood, a dishwasher, and even more storage space. The bathroom includes a spacious shower stall, a second toilet, a vanity unit, and a washing machine connection. It may be possible to move the washing machine connection to the adjacent storage room.

Area:
By bus or bike, you can quickly reach Poort Station, which, like Centrum Station, offers excellent and fast connections to Amsterdam. Prefer to drive? The A6 motorway entrance to Het Gooi, Amsterdam, and Lelystad is only 3 kilometers away. This apartment is ideally located near Almere Duin, with its beach, beautiful marina, and charming restaurants and cafes.

Details:
- Please note! This property is offered with a starting price;
- Well-insulated, ground-floor apartment;
- Living area approximately 123 m², including a conservatory of approximately 35 m²;
- Living room, conservatory, and bedroom with air conditioning;
- Private parking space and separate bicycle storage;
- Energy label A+, valid until January 6, 2036;
- Beautiful view of Cascade Park;
- Connected to the district heating system;
- Plastic window frames with HR++ glass;
- Homeowners' Association (VvE) fee €227 per month;
- Quick delivery is possible upon consultation.

Want to know more?

Martijn Bok
NVM makelaar.

Dettifossstraat 264 Almere

MAP

Video

Interested in this property?

What can we do for you?

Contact information