Home / Buy a home / Houses for sale / Alex Bennostraat 3 Almere

Alex Bennostraat 3

BESCHIKBAAR A

AlmereFilmwijk

€ 1.200.000 k.k.

Almere Filmwijk


Type of property
Vrijstaande woning

Surface
251 m²

Plot
976 m²

Bedrooms
6

Bathrooms
1

Year of construction
1996

About the house

“Location, location, location!”

Directly ON THE WATER in a quiet, traffic-free street, you'll find this modern DETACHED VILLA in an absolutely stunning location near Lumièrepark in the sought-after Filmwijk area of Almere Stad. The villa is beautifully designed and sits on a spacious plot of 976 m², including water! What a view. ??

Filmwijk is the ideal location, thanks to its central position relative to the vibrant city center (only a 10-minute walk away!) and excellent connections to the A6 and A27 motorways. But that’s not all: in the immediate vicinity, you'll find everything you need, such as schools, a hospital, shops, public transport, and sports and recreational facilities. Weerwater with its beach is just around the corner – perfect for a sunny day or an active afternoon!

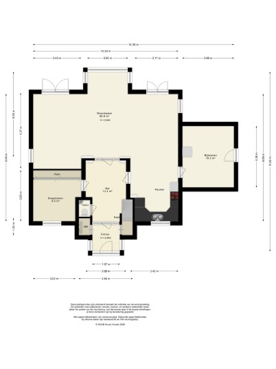
Ground floor layout:

A spacious entrance hall welcomes you, with a modern toilet, meter cupboard, and access to a bedroom/home office. But the real "wow" moment comes when you enter the wonderful living room! Thanks to the large windows, natural light floods the space, giving it an inviting and airy feel.

The open U-shaped kitchen is perfect for socializing! There’s plenty of room for a large dining table where you can enjoy drinks, meals, and good company. The kitchen is equipped with all modern conveniences: a dishwasher, fridge, induction cooktop, and a double sink, making cooking a real pleasure.

From the kitchen, you can access the utility room, which includes connections for your laundry appliances. From the storage room, you have access to the garden, where you can relax and unwind.

The entire ground floor is finished with a tiled floor and underfloor heating, adding extra comfort and atmosphere.

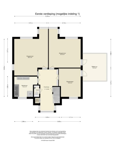
First floor:

The first floor is a true transformable space that can be tailored to your preferences. Currently, it features a living room and 3 bedrooms, but you can easily redesign the space to create additional bedrooms. The large balcony is accessible from both the living room and the bedroom, making it the perfect spot for a peaceful moment or to enjoy the view.

The bathroom is complete with a bathtub, a separate shower, and a vanity unit. There is also a separate toilet on this floor for added convenience.

Just like the ground floor, underfloor heating is present here, and the floor is finished with tiles.

Second floor:

The second floor is one large open space, perfect for use as a bedroom, hobby room, or even a home theater! The French doors lead out to the roof terrace, where you can enjoy not only stunning views but also the benefits of solar panels, providing you with sustainable energy. Additionally, a sink with hot and cold water is available.

The garden:

The driveway provides plenty of space for multiple cars, ensuring you always have enough parking. The garden is meticulously landscaped, featuring beautiful borders with planting, creating a lush, well-maintained look. Here, you can unwind on the different terraces, or simply enjoy the water. It's the perfect place to relax, dine, or just enjoy nature!

Special features:

Year of construction: 1996
Energy label: A – A highly energy-efficient home
Living area: Approx. 251 m² (according to NEN2580 measurement report)
Plot size: 976 m²
Energy-efficient home with 24 solar panels
South-facing backyard on navigable water
Delivery: In consultation, can be quick

This villa is truly a gem in a prime location, offering tremendous potential and comfort. It’s not just a house – it’s a lifestyle! Schedule a viewing soon and discover for yourself what makes this property so special.

Want to know more?

Leonoor Brouwer
NVM makelaar.

Alex Bennostraat 3 Almere

MAP

Video

Interested in this property?

What can we do for you?

Contact information