Home / Buy a home / Houses for sale / A. Vondelingstraat 38 Almere

A. Vondelingstraat 38

VERKOCHT ONDER VOORBEHOUD A

AlmereStaatsliedenwijk

€ 400.000 k.k.

Almere Staatsliedenwijk


Type of property
Tussenwoning

Surface
102 m²

Plot
220 m²

Bedrooms
4

Bathrooms
1

Year of construction
1987

About the house

Cozy Terraced House in the Heart of Almere City – Your New Home?

Are you looking for a spacious family home with four bedrooms and a sunny garden facing south? Then this charming property is exactly what you're looking for! Located in a quiet and child-friendly neighborhood in Almere City, you’re just minutes away from the vibrant city center, with all amenities close by.

With an energy label A, four bedrooms, and a sunny south-facing garden, this house has everything you need for family living or for anyone who wants to live centrally.

The property is offered with a starting price of €400.000,- k.k.

Layout

Through the front garden, you reach the entrance of the house. In the hall, you’ll find the meter cupboard and a guest toilet with a hand basin.

The spacious living room is located at the rear of the house and offers views of the cozy garden. Thanks to the large windows, plenty of natural light floods the space, creating a bright and airy atmosphere. The open kitchen at the front of the house is efficiently designed, offering ample work and storage space.

The entire ground floor is fitted with a new PVC floor (2024), which contributes to the modern and fresh feel of the house.

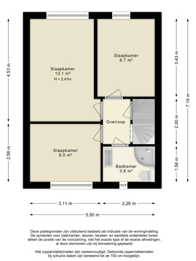
On the first floor, you’ll find three well-sized bedrooms and the bathroom, which is equipped with a shower, sink with vanity, and a toilet.

The second floor is cleverly laid out with a landing and a spacious fourth bedroom. Here, you'll also find the connections for the washing machine and dryer.

From the living room, you have access to the sunny backyard via French doors. The garden faces south, allowing you to enjoy the sun all day long. At the back of the garden, there’s a practical wooden shed, ideal for storing bicycles or garden tools. The garden also has a back entrance, providing easy access to the rear of the property.

Features:

Living area: 102 m²
Plot size: 110 m²
Ground floor with plastic window frames
Energy label: A (valid until 27-01-2036)
Year of construction: 1987
Hot water and heating: City heating
Parking: Paid parking or with a resident’s parking permit
Delivery in consultation

Can you already picture yourself living here? This home offers plenty of space, is centrally located, and has everything you need for comfortable living. We warmly invite you to come experience it for yourself – we'd love to show you around!

Want to know more?

Leonoor Brouwer
NVM makelaar.

A. Vondelingstraat 38 Almere

MAP

Video

Interested in this property?

What can we do for you?

Contact information