Poolzeestraat 3

BESCHIKBAAR

Lelystad

€ 2.000 p/m

Lelystad

About Poolzeestraat 3 Lelystad

Locatie
Gelegen in de rustige en groene Waterwijk in Lelystad, bieden wij dit kantoorpand annex praktijkruimte aan. Het object aan Poolzeestraat 3 is uitermate geschikt voor bedrijven die op zoek zijn naar een flexibele werkruimte, ideaal voor dienstverlening of maatschappelijke doeleinden.

Dit pand biedt diverse mogelijkheden voor ondernemers, zorgverleners, en maatschappelijke organisaties die zich willen vestigen in een rustige, goed bereikbare omgeving, met uitstekende faciliteiten in de buurt.

Bereikbaarheid
Het pand is goed bereikbaar en ligt nabij diverse voorzieningen. Het bevindt zich op fietsafstand van het centrum van Lelystad en is uitstekend bereikbaar met de auto. De dichtstbijzijnde uitvalsweg ligt op slechts 4 minuten rijden (A6 richting het noorden / Amsterdam en de N302 naar Harderwijk).

Bestemming
De bestemming "Dienstverlening" heeft betrekking op dit bouwblok, dat deel uitmaakt van de woon-werklocatie in Sont.
Dit blok is uitsluitend bestemd voor dienstverlenende functies.

Object
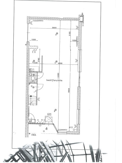
Instapklare kantoorpand met een totale oppervlakte van circa 148 m² verdeeld over de begane grond en 1e verdieping.

Voorzieningen
- pantry;
- toilet;
- plafonds met inbouwverlichting;
- cv-installatie.

Parkeren
Er zijn voldoende parkeermogelijkheden bij het pand, zowel op de openbare weg als mogelijk in nabijgelegen parkeerzones.

Beschikbaar
In overleg.

Huurprijs
€ 2.000,00 per maand exclusief btw.

BTW
Uitgangspunt is BTW-belaste verhuur. Derhalve dient bovengenoemd bedrag te worden vermeerderd met het van toepassing zijnde BTW-percentage. Indien huurder niet aan het 90% criterium voldoet, is er van rechtswege sprake van omzetbelasting vrijgestelde verhuur. Alsdan wordt de overeengekomen kale huurprijs, exclusief omzetbelasting, zodanig verhoogd dat het voor verhuurder ontstane nadeel wordt gecompenseerd.

Huurtermijn
In overleg.

Huurbetaling
Huur, servicekosten en BTW per maand vooruit.

Huurcontract
De huurovereenkomst wordt opgesteld volgens het model door de Raad voor Onroerende Zaken in maart 2025 vastgesteld.

Huurprijsindexering
Jaarlijks, op basis van de wijziging van het maandprijsindexcijfer volgens de Consumentenprijsindex (CPI) reeks “Alle huishoudens” (2025=100), gepubliceerd door het Centraal Bureau voor de Statistiek (CBS), voor het eerst 1 jaar na huuringangsdatum en vervolgens jaarlijks op deze datum.

Zekerheidstelling
De bankgarantie/waarborgsom dient gelijk te zijn aan 3 maanden huur te vermeerderen met de servicekosten en de over deze bedragen wettelijk verschuldigde BTW.

Voorbehoud
Voorbehoud van goedkeuring verhuurder. De vermelde informatie is van algemene aard. Aan de inhoud van deze informatie kunnen geen rechten worden ontleend.

Informatie
Van der Linden Bedrijfsmakelaars B.V.
Zilverparkkade 101 B
8232 WK Lelystad
tel: 0320-241774

Aanvragen bij voorkeur via Funda of onze website

Need more info?

Nathalie Zeegelaar
Commercieel medewerker Bedrijfsmakelaardij.

Location of this property

Poolzeestraat 3 Lelystad

MAP

Floorplans

Interested in this commercial property?

What can we do for you?

Contact us

Van der Linden