Cellebroederspoort 9H – Dronten
Nieuwe hoekunit met eigen parkeerplaats op bedrijventerrein ‘Poort van Dronten’
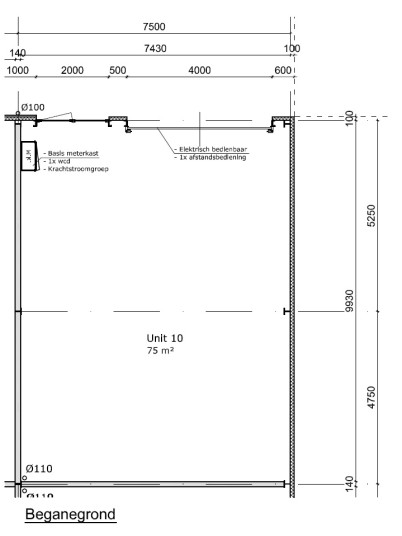
Aan de Cellebroederspoort 9H in Dronten wordt deze nieuwe bedrijfsruimte van circa 74 m² aangeboden. De unit is gelegen op een hoek en heeft daardoor extra lichtinval via de ramen in de zijgevel. Voor de deur is een eigen parkeerplaats aanwezig en het terrein wordt bestraat met betonklinkers.
De bedrijfsruimte is goed geïsoleerd. De begane grondvloer heeft een vloerbelasting van 1.000 kg per m² en is, net als de gevels en het dak, volledig geïsoleerd. De overheaddeur is elektrisch bedienbaar en heeft een hoogte van circa 3,25 meter.
Lees verderVerder beschikt de unit over kunststof kozijnen en deuren, een meterkast met elektra-aansluiting van 3x25 Ampère, een wateraansluiting en een rioolaansluiting. Dankzij de vrije hoogte is er voldoende ruimte om een verdiepingsvloer aan te brengen, wat extra gebruiksoppervlak mogelijk maakt.
De Cellebroederspoort ligt aan de rand van bedrijventerrein Poort van Dronten. Dit terrein is modern opgezet, goed bereikbaar en grenst aan een groenstrook. Via de N23 en N307 is er een uitstekende aansluiting op de A6 richting Almere en Emmeloord, en op de routes richting Kampen en Zwolle. Het bedrijventerrein is volop in ontwikkeling en kenmerkt zich door brede wegen, een verzorgde inrichting en een actief parkmanagement dat toeziet op de kwaliteit en uitstraling van het gebied. Bij de entree van het terrein zijn diverse voorzieningen aanwezig, waaronder fastfoodrestaurants en een tankstation.
Kenmerken:
- Hoekunit met veel daglicht
- Bedrijfsruimte ca. 74 m²
- Voorzien van meterkast
- Elektra 3x25 Ampère
- Rioolaansluiting
- Wateraansluiting
- Eigen parkeerplaats
- Elektrische overheaddeur (3,25 m hoog)
- Geïsoleerde vloer, gevels en dak
- Vloerbelasting 1.000 kg/m²
- Kunststof kozijnen en deuren
- Centrale ligging en goede bereikbaarheid
- Aanvaarding na oplevering
- Makelaardij Van der Linden Dronten
Deze informatie is door ons met de nodige zorgvuldigheid samengesteld. Onzerzijds wordt echter geen enkele aansprakelijkheid aanvaard voor enige onvolledigheid, onjuistheid of anderszins, dan wel de gevolgen daarvan. Alle opgegeven maten en oppervlakten zijn indicatief.