Let op! Vraagprijs betreft een "Bieden vanaf prijs".
Deze ruime vrijstaande woning is gelegen op een prachtig ruim hoekperceel van 679m². Zowel de woning als de tuin zijn goed onderhouden en keurig afgewerkt. De woning beschikt over een inpandige bijkeuken en geïsoleerde garage, alsmede over een oprit met 4 parkeerplaatsen. De woning is tevens voorzien van een 4 ruime slaapkamers, een luxe badkamer, luxe toiletruimte en luxe keuken met ingebouwde apparatuur. De zonnige tuin ruim opgezet en mooi aangelegd. Tegen de woning is een groot terras gelegen en achterin de tuin staat een vrijstaande berging met overkapping. Winkels, scholen, het gezondheidscentrum Dronten-west en uitvalswegen naar Almere, Zwolle en Emmeloord zijn nabij gelegen.
Lees verderIndeling:
Begane grond: entree, ruime hal met garderobe, uitgebreide meterkast en toiletruimte met hangcloset en fonteintje, doorgang naar de inpandige bijkeuken. Vanuit de bijkeuken is de volledig geïsoleerde garage bereikbaar welke voorzien is van een loopdeur naar de tuin en openslaande deuren naar de ruime oprit. De L-vormige woonkamer bevindt zich aan de achterzijde van de woning en heeft uitzicht op de tuin. De woonkamer is voorzien van een houtkachel en openslaande deuren naar de tuin. Aan de voorzijde van de woning is de ruime eethoek gesitueerd met aansluitend de ruime open U-keuken met ingebouwde koelkast, combimagnetron, vaatwasser, 6-pits gasfornuis met oven (Boretti) en afzuigkap. De begane grond beschikt over een tegelvloer gecombineerd met vloerverwarming. De tuin is rondom de woning gesitueerd en met aandacht aangelegd. De beplanting geeft ieder seizoen een prachtig beeld en het grote terras tegen de woning geeft de mogelijkheid om in de zomermaanden lang te genieten van de zonsondergang. Achterin de tuin is een kas alsmede een vrijstaande berging met overkapping gesitueerd.
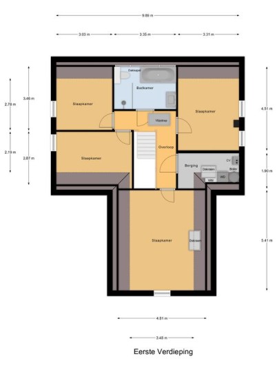
1e verdieping: vaste trap naar de overloop met aansluitend 4 mooie slaapkamers en de luxe badkamer met dakkapel. De overloop en slaapkamers zijn voorzien van een moderne laminaatvloer. De lichte badkamer beschikt over een grote dakkapel alsmede een 2e hangcloset, ruime inloopdouche, ligbad, en wastafelmeubel. Aan de hal is tevens een ruime berging met dakraam gelegen waar de c.v.-ketel (Intergas HR), zonneboiler, omvormer en was-apparatuur opgesteld staan.
2e verdieping: middels een vlizotrap is de grote bergzolder bereikbaar.
* Bouwjaar: 2012 perceelgrootte: 640 m²
* Instap gereed !!
* Prachtige locatie nabij de landerijen
* Luxe afgewerkt en goed onderhouden
* Prachtige tuin met riante terras en tuinhuis met overkapping
* Voorzien van een zonneboiler
* Voorzien van 10 zonnepanelen
* Voldoende parkeergelegenheid op eigen perceel
* Luxe badkamer en ruime zeer riante keuken
* Inpandige bijkeuken en garage
* 4 ruime slaapkamers
* Ruime living met houtkachel
* Energielabel A
* Levering in overleg
* Makelaardij Van der Linden
* Bij verkoop hanteren wij een NVM koopakte model 2023
Het verkoopproces verloopt in zijn geheel via MOVE.nl en daarmee ook het biedingsproces. Biedingen dienen via MOVE te worden ingediend. U ontvangt op het moment dat u een afspraak voor bezichtiging maakt, inloggegevens voor een MOVE account. Via dat account kunt u alle benodigde informatie en documenten inzien en, indien gewenst, een bod uitbrengen.
Deze informatie is door ons met de nodige zorgvuldigheid samengesteld. Onzerzijds wordt echter geen enkele aansprakelijkheid aanvaard voor enige onvolledigheid, onjuistheid of anderszins, dan wel de gevolgen daarvan. Alle opgegeven maten en oppervlakten zijn indicatief.
