In de geliefde en ruim opgezette wijk Gerenlanden (Zwolle Zuid), nabij water en groenvoorzieningen gelegen hoekwoning met aangebouwde stenen berging en tuin op 226 m2 grond. Aan de voorzijde is er de mogelijkheid om uw auto te parkeren. De achtertuin is zeer verzorgd en beschikt over een achterom.
De wijk Geren ligt aan de rand van Zwolle Zuid en daardoor op korte afstand van veel voorzieningen, het station van Zwolle en de historische binnenstad van Zwolle.
Begane grond
Entree, hal met meterkast, vernieuwd toilet met fontein, trapopgang, Z-vormige woonkamer v.v. trapkast, dichte keuken met eenvoudig net keukenblok alsmede toegang tot de aangebouwde stenen berging. Achterentree.
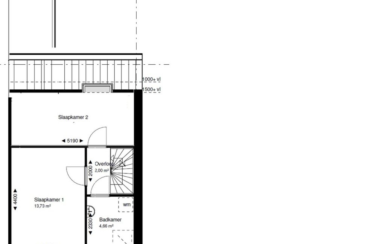
Lees verder1e verdieping
Overloop met toegang tot 2 royale slaapkamers. De slaapkamer aan de achterzijde ligt over de gehele breedte van het woning. De badkamer is voorzien van een douche, vaste wastafel en een wasmachineaansluiting. Via een vaste trap bereikt u de tweede verdieping.
2e verdieping
Ruime overloop met extra bergruimte met cv (Remeha Avanta bj 2010) en een 3e slaapkamer, voorzien van een groot dakraam.
Algemeen
- Bouwjaar woning 1985
- huur 10 liter keuken boiler
- cv-ketel 2010.
- Projectnotaris: Het Notarieel.
- Gezien het bouwjaar kunnen er asbesthoudende materialen gebruikt zijn.
- Anti-speculatiebeding gedurende 2 jaar
- Koper is gedurende 2 jaar verplicht het gekochte uitsluitend te gebruiken om zelf (met zijn eventuele gezinsleden) te bewonen en het gekochte niet aan derden te verhuren of op andere wijze in gebruik te geven
De verkoop geschiedt middels een biedingformulier welke u tijdens de bezichtiging aangereikt krijgt.
