**English below**
Wonen aan de gracht - in het hart van historisch Amsterdam!
Wonen in het centrum van Amsterdam aan één van de mooiste en meest geliefde grachten die de stad kent. Gelegen op een iconische locatie in het bruisende hart van de stad, biedt dit appartement een unieke combinatie van historische charme en hedendaags wooncomfort. Dit karaktervolle appartement is gelegen op de eerste en tweede verdieping van een prachtig gemeentelijk monument uit 1730, ontworpen door architect P.F. Laarman in neoclassicistische stijl.
Lees verderMet een woonoppervlakte van circa 136 m², gelegen op EIGEN GROND, beschikt de woning over een royale woonkamer met open keuken, twee ruime slaapkamers in het dubbele achterhuis en een heerlijk balkon op het westen. Vanaf de eerste verdieping van het voorhuis geniet je van een schitterend uitzicht over de gracht, terwijl de twee verdiepingen in het achterhuis juist zorgen voor rust en privacy, een zeldzame combinatie in het centrum van de stad. De klassieke lijstgevel en authentieke details herinneren aan het rijke verleden van het pand. Een charmante plek waar historie en modern gemak naadloos samenkomen.
Geïnteresseerd geworden in deze woning? Neem contact op voor een bezichtiging en ervaar zelf de charme van deze woning.
Indeling
Eerste verdieping:
Via de gemeenschappelijke trap bereik je de entree van de eerste verdieping. Je stapt binnen in een sfeervol en goed ingedeeld appartement, waar de indrukwekkend ruime en lichte woonkamer aan de voorzijde direct in het oog springt. Grote raampartijen bieden een prachtig uitzicht op de gracht en zorgen samen met de hoge plafonds voor een zee van licht en een aangename, open sfeer. Centraal in de woning bevindt zich de open keuken, uitgerust met een gaskookplaat, vaatwasser, koelkast, vriezer en combi oven (Siematic en Bosch). Naast de keuken vind je een apart toilet met fonteintje. Aan de rustige achterzijde (achterhuis) van het appartement ligt een royale slaapkamer, die direct toegang biedt tot een balkon op het westen. Een heerlijke plek om in de middag- en avondzon te ontspannen. De naastgelegen badkamer is ingericht met een dubbele wastafel, een ruimligbad/douche en aansluitingen voor wasmachine en droger. Vanuit de hal leidt een vaste trap omhoog naar de ruime overloop op de tweede (en hoogste) verdieping van het achterhuis.
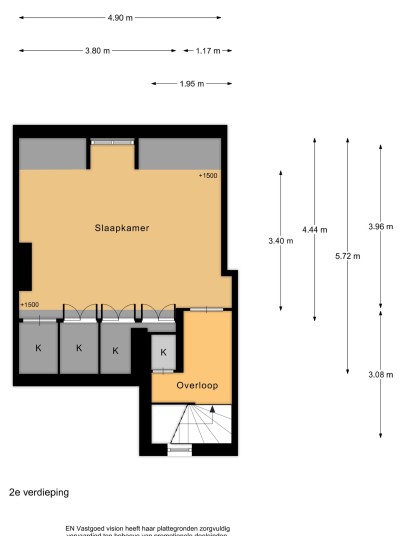
Tweede verdieping achterhuis:
Via de interne trap bereik je de overloop van de tweede verdieping en hoogste verdieping van het achterhuis. Hier kom je uit bij een bijzonder ruime en sfeervolle kamer, perfect in te richten als master bedroom, werkkamer of comfortabele logeerruimte. De speelse daklijn in combinatie met de dakkapel zorgt voor een karakteristieke uitstraling en een prettige lichtinval. Langs de wanden bevindt zich volop ingebouwde kastruimte, ideaal voor kleding, opslag of andere benodigdheden. Deze ruimte combineert charme en functionaliteit op een manier die je zelden tegenkomt.
Omgeving:
De woning bevindt zich op één van de mooiste en meest gewilde locaties van de stad: direct aan het iconische Singel, midden in het bruisende centrum van Amsterdam, direct achter de Dam. Deze charmante gracht is niet alleen een lust voor het oog, maar vormt ook de perfecte uitvalsbasis voor wie wil genieten van alles wat de stad te bieden heeft. Op steenworp afstand vind je De Negen Straatjes, bekend om hun unieke boetiekjes, gezellige cafés en culinaire hotspots. Voor de dagelijkse boodschappen zijn er diverse supermarkten en speciaalzaken in de buurt, evenals een verscheidenheid aan ambachtelijke bakkers, koffietentjes en delicatessenzaken. Cultuur liefhebbers kunnen hun hart ophalen bij nabijgelegen musea, galerieën, theaters en historische gebouwen. Of je nu houdt van een rustige wandeling langs de grachten, een middagje shoppen, een avond uit eten of simpelweg wilt genieten van het Amsterdamse stadsleven: op deze locatie zit je midden in het beste dat de stad te bieden heeft.
Bereikbaarheid:
Zowel de tram, bus alsmede metro (noord-zuidlijn) zijn op loopafstand bereikbaar. Ook per auto is de ringweg gemakkelijk te bereiken. Het Centraal Station ligt op slechts enkele minuten loopafstand waardoor de bereikbaarheid, ook richting Schiphol of andere steden uitstekend is.
Vereniging van Eigenaren:
De Vereniging van Eigenaren (VvE) wordt professioneel beheerd door Iris VvE Beheer. Voor deze woning zijn de maandelijkse servicekosten vastgesteld op € 250,62 per maand. De administrateur draagt onder andere zorg voor financieel en administratief beheer, alsmede bestuurlijke en technische ondersteuning.
Grondsituatie
De woning is gelegen op EIGEN GROND!
Bijzonderheden:
- Woonoppervlakte circa 136 m² conform NEN2580 (Meetrapport aanwezig);
- Bouwjaar 1730;
- Gemeentelijk monument;
- Twee ruime slaapkamers;
- Heerlijk zonnig balkon gelegen op het westen;
- Gelegen op eigen grond!;
- Actieve en gezonde VvE, maandelijkse bijdrage € 250,62;
- Gelegen aan het Singel, aan vaarwater, nabij De Negen Straatjes, Centraal Station en de Dam;
- Ouderdomsclausule van toepassing;
- Oplevering in overleg.
----------------------------------------------------------------------------------------------------
English text:
Living by the canal – in the heart of historic Amsterdam!
Living in the center of Amsterdam on one of the most beautiful and beloved canals the city has to offer. Located in an iconic spot in the vibrant heart of the city, this apartment offers a unique combination of historic charm and contemporary living comfort. This characterful apartment is located on the first and second floors of a beautiful municipal monument from 1730, designed by architect P.F. Laarman in neoclassical style. With a living area of approximately 136 m², located on PRIVATE LAND, the property features a spacious living room with open kitchen, two generous bedrooms in the double rear house, and a lovely west-facing balcony. From the first floor of the front house, you can enjoy a magnificent view over the canal, while the two floors in the back house provide peace and privacy – a rare combination in the city center. The classic frame façade and authentic details are a reminder of the property’s rich past. A charming place where history and modern convenience come together seamlessly.
Have you become interested in this property? Contact us for a viewing and experience the charm of this home for yourself.
Layout
First floor:
Through the communal staircase, you reach the entrance to the first floor. You step into an attractive and well-laid-out apartment, where the impressively spacious and bright living room at the front immediately catches your eye. Large windows offer a beautiful view of the canal and, together with the high ceilings, create an abundance of light and a pleasant, open atmosphere. At the center of the apartment is the open kitchen, equipped with a gas hob, dishwasher, refrigerator, freezer, and combi oven (Siematic and Bosch). Next to the kitchen, you’ll find a separate toilet with hand basin. At the quiet rear (back house) of the apartment is a generous bedroom, which offers direct access to a west-facing balcony — a wonderful place to relax in the afternoon and evening sun. The adjacent bathroom is equipped with a double sink, a spacious bathtub/shower, and connections for a washer and dryer. From the hall, a fixed staircase leads to the spacious landing on the second (and top) floor of the rear house.
Second floor rear house:
Via the internal staircase, you reach the landing of the second and top floor of the rear house. Here you’ll find a particularly spacious and cozy room, perfect to set up as a master bedroom, study, or comfortable guest room. The playful roofline combined with the dormer gives the space a distinctive character and pleasant light. Along the walls, there is ample built-in closet space — ideal for clothes, storage, or other essentials. This space combines charm and functionality in a way rarely found.
Surroundings
The property is located in one of the most beautiful and sought-after areas of the city: directly on the iconic Singel, in the heart of Amsterdam’s bustling city center, right behind Dam Square. This charming canal is not only a feast for the eyes, but also the perfect base for those who want to enjoy everything the city has to offer. Just steps away you’ll find De Negen Straatjes, known for their unique boutiques, cozy cafés, and culinary hotspots. For daily shopping, there are several supermarkets and specialty stores nearby, as well as a variety of artisan bakeries, coffee bars, and delis. Culture lovers can indulge in nearby museums, galleries, theaters, and historic buildings. Whether you enjoy a quiet stroll along the canals, an afternoon of shopping, dining out, or simply soaking up city life — this location puts you in the heart of the best Amsterdam has to offer.
Accessibility
Trams, buses, and the metro (North-South line) are all within walking distance. The ring road is also easily accessible by car. Central Station is just a few minutes’ walk away, making connections to Schiphol Airport and other cities excellent.
Owners' Association:
The Owners’ Association (VvE) is professionally managed by Iris VvE Beheer. For this property, the monthly service charges are set at €250.62. The administrator handles financial and administrative management, as well as administrative and technical support.
Land situation
The property is situated on private land.
Details:
- Living area approximately 136 m² in accordance with NEN2580 (measurement report available);
- Year of construction: 1730;
- Municipal monument;
- Two spacious bedrooms;
- Lovely sunny balcony facing west;
- Situated on private land;
- Active and healthy VvE, monthly contribution €250.62;
- Located on the Singel, near De Negen Straatjes, Central Station, and Dam Square;
- Delivery in consultation.
