Een bijzondere woning met drie kamers en een eigen parkeerplek, gelegen op een prachtige locatie in de populaire wijk Noorderplassen!
Vanuit de woning geniet je van een fantastisch uitzicht over het water en sta je binnen enkele minuten lopen in het bos van Pampushout. De wijk kenmerkt zich door een fijne, groene en rustige omgeving met diverse voorzieningen binnen handbereik, zoals basisscholen, een supermarkt, een gezondheidscentrum en twee jachthaventjes met ligplekken voor een bootje.
Ook de bereikbaarheid is uitstekend: op korte afstand vind je de uitvalswegen naar de A6 en A1.
Lees verderMet de bus ben je bovendien binnen 13 minuten in het levendige stadscentrum van Almere Stad, waar je terechtkunt voor onder andere een bioscoop, schouwburg, bibliotheek, ziekenhuis, NS-treinstation en een ruim aanbod aan winkels, restaurants en cafés.
Dit appartement wordt aangeboden met een bieden vanaf prijs € 350.000,- k.k.
Indeling
Begane grond
Bij binnenkomst kom je in de hal met meterkast en de trap naar de verdieping. Vanuit hier loop je door naar de woonkamer/keuken, die direct toegang biedt tot het privéterras. De moderne keuken is van alle gemakken voorzien en sluit mooi aan op de leefruimte. Onder de trap vind je een zeer ruime trapkast, ideaal als extra bergruimte.
Eerste verdieping
Op de eerste verdieping bevindt zich een bijzondere slaapkamer met een separate wasruimte. Dankzij de grote, kenmerkende raampartijen geniet je hier van een prachtig uitzicht over het water. Deze verdieping biedt bovendien de mogelijkheid om een extra woonkamer te creëren, wat zorgt voor een speels en flexibel gebruik van de ruimte.
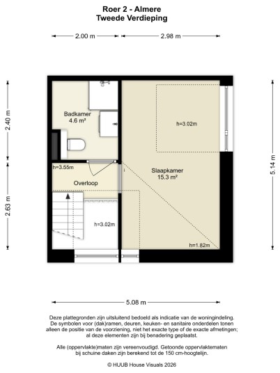
Tweede verdieping
De tweede verdieping beschikt over een slaapkamer met een verhoogd plafond tot in de nok en twee grote ramen, wat zorgt voor een ruimtelijk en licht gevoel. De luxe badkamer is compleet uitgevoerd met een fraaie inloopdouche met glazen wand, een tweede toilet, wastafel en een radiator.
Buitenruimte en extra’s
De woning is netjes afgewerkt met onder andere schuifdeuren en een licht trappenhuis. Aan de voorzijde heb je een kleine voortuin en aan de achterzijde een privéterras dat grenst aan een gezamenlijke binnentuin. Daarnaast beschik je over een privéparkeerplaats en zijn er speelvoorzieningen in de directe omgeving.
Bijzonderheden:
- Bouwjaar 2008;
- Woonoppervlakte ca. 77 m2 (conform NEN2580 meetrapport);
- De woning heeft een appartementsrecht;
- Eigen parkeerplaats en berging;
- Energielabel A (geen gas);
- VVE bijdrage ca. € 108,- per maand;
- Horren voor de ramen;
- Oplevering in overleg.
