Gelegen op één van de leukste locaties van Zwolle Zuid, zoekt u een gelijkvloerse woning maar geen appartement ?
Een unieke combinatie: gelijkvloers wonen (slaapkamer en badkamer op de begane grond), een royale tuin en een EXTRA GROTE garage met een oprit !! Het betreft hier een groter type, de garage almede de slaapkamer op de beganegrond zijn aan de achterzijde breder. Op de plattegrond is dit helder en duidelijk te zien.
Deze twee-onder-één-kap woning met garage ligt aan een rustige straat in de woonwijk Schelle (Zwolle Zuid). Vanuit de keuken heeft u een schitterend vrij uitzicht over een groen park!
Lees verderTevens zijn hier meerdere speelgelegenheden en u kunt wandelend naar de Schellerallee, een oude laan die van oorsprong van de binnenstad naar de IJssel liep. Op de fiets bent u zo bij de IJssel en het Engelse Werk.
Voor de dagelijkse boodschappen is er op loopafstand het kleine winkelcentrum aan de Forelkolk met o.a. een supermarkt, bakker, bloemist en een snackbar. Het NS-station en de binnenstad liggen op fietsafstand. Met de auto bent u in een paar minuten op de A28.
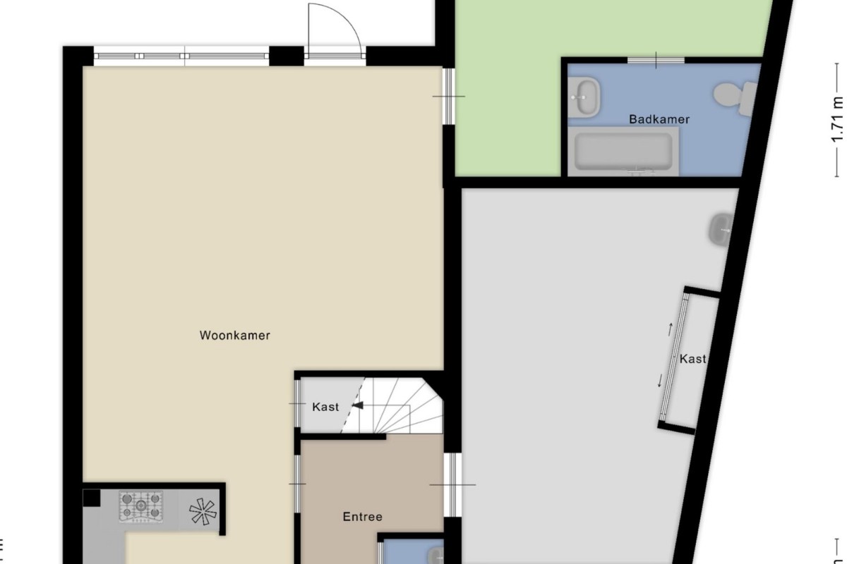
De indeling van de woning is als volgt:
Entree, toilet met fonteintje, toegang tot de extra brede garage. De woonkamer (ca. 30 m2) is tuingericht en is gelegen op het noordwesten.
Vanuit de woonkamer komt u in de slaapkamer met badkamer. Deze is voorzien van ligbad, douche, toilet en wastafel. De keuken is eenvoudig uitgevoerd en is gesitueerd aan de voorzijde.
Op de verdieping treft u een ruime overloop, twee grote slaapkamers en een badkamer met douche, wastafel en aansluiting voor wasmachine en wasdroger. Middels een vlizotrap is de grote vliering bereikbaar.
Beide badkamers hebben witte tegels en sanitair.
Uniek "vrij" wonen in Zwolle Zuid!
Algemeen:
- Perceel 328 m2
- Woonoppervlak 117 m2 exclusief garage (21m2 )
- Slaapkamer en badkamer op de beganegrond
- Extra grote garage
- Projectnotaris Het Notarieel te Zwolle
