MARKTGRACHT 132 - BESCHIKBAAR
Onderdeel van het project '38 Appartementen in Almere Haven'.
Ben je op zoek naar een nieuw, eigentijds appartement, maar wil je niet jaren wachten op een nieuwbouwproject? Dit is je kans!
Aan de Marktgracht in Almere Haven wordt een voormalig bedrijfspand getransformeerd tot 38 moderne appartementen met 2 of 3 kamers, variërend in grootte van 25 tot 67 vierkante meter. De genoemde koopsommen zijn K.K.!
Marktgracht 132;
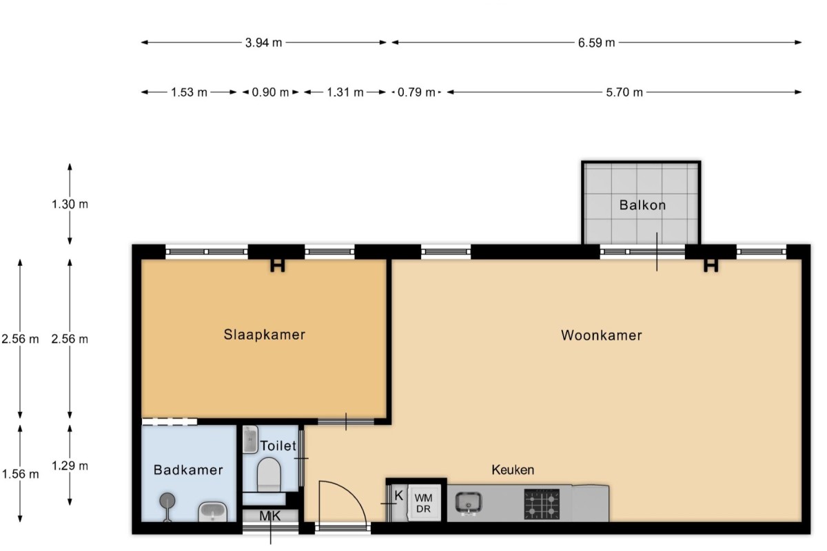
Gelegen op de vierde, en tevens bovenste verdieping tref je dit fijne 2-kamer appartement. Het appartement is afgewerkt als 'Casco++' volgens 'Moodboard Wit'.
De woning is voorzien van een keuken, luxe sanitair, PVC vloer met hoge plinten, verlichting en alle wanden zijn sausklaar.
Lees verderKortom, het appartement is Turn-Key klaar!
Wil jij wonen in een modern, duurzaam en stijlvol appartement in het gezellige Almere Haven? Kom dan langs en ontdek het complex én enkele modelappartementen. Of je nu starter bent, een kleinere woning zoekt of gewoon een nieuwe plek wilt, er is voor ieder wat wils!
Modern en duurzaam wonen
Alle appartementen zijn ontworpen met oog voor comfort, duurzaamheid en energiezuinigheid:
• Vloerverwarming én koeling, aangesloten op een centrale warmtepomp.
• HR++ glas voor optimale isolatie.
• Een elektrische boiler voor warm water.
• Bij sommige appartementen: zonnepanelen die direct zijn aangesloten op de eigen meter.
De transformatie van het pand is grotendeels afgerond. De verdere afwerking wordt met oog voor detail uitgevoerd, waardoor de appartementen en algemene ruimtes een hoogwaardige, moderne uitstraling krijgen.
Belangrijke informatie
• Artist impressions geven slechts een indicatie van de inrichting / afwerking van de gemeenschappelijke ruimtes.
Wil je op de hoogte blijven van alle ontwikkelingen? Stuur dan een mail naar nieuwbouw.almere@vanderlinden.nl.
