Let op! Deze vraagprijs betreft een "Bieden vanaf vraagprijs".
Dit gloednieuwe en zeer fraai afgewerkte appartement is ideaal gelegen met een privé berging op de begane grond en een riante balkon op het westen gesitueerd! Het appartement beschikt over 3 zonnepanelen, en een warmtepomp met vloerverwarming en is daarmee zeer energiezuinig! De strakke afwerking met o.a. een luxe keuken, pvc vloeren en luxe badkamer maken dit appartement direct instap-klaar. De ligging met ruim overdekt balkon met uitzicht op het westen, direct bij het station van Dronten en nabij het winkelcentrum "Suydersee", maakt het geheel helemaal af!
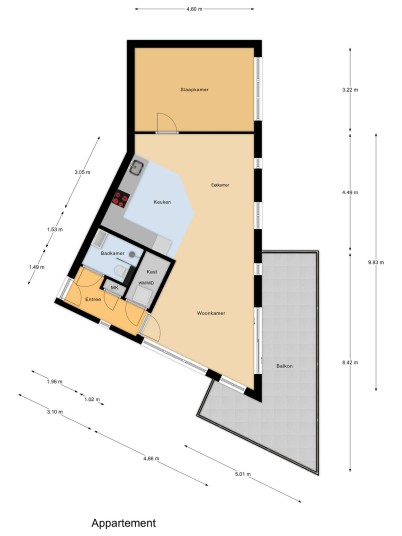
Lees verderIndeling:
Begane grond: centrale ingang met het bellentableau en brievenbussen naar de gemeenschappelijke hal waar het trappenhuis toegang biedt tot het appartement op de eerste verdieping. Een separate ingang geeft toegang
Appartement: entree naar de hal met garderobe, uitgebreide meterkast (3-fase) en een ruime berging waar de warmtepomp, unit voor de vloerverwarming, omvormer voor de 3 zonnepanelen, mv-unit en aansluiting voor de wasmachine en droger gesitueerd zijn. De badkamer is voorzien van moderne betegeling, een hangcloset, inloopdouche met glazen scherm, een hangkast en wastafel met meubel. De brede woonkamer betreft een mooie lichte ruimte met een schuifpui naar het balkon op het westen en vrij uitzicht over "Veldryck". De woonkamer heeft veel ramen en daarmee een heerlijke lichtinval. De moderne keuken is uitgevoerd met fronten in een taupe kleurstelling met marmerlook werkblad en is in een hoek opgesteld. De keuken biedt veel kastruimte en een groot werkblad. Tevens is de keuken voorzien van een ingebouwde koel-/vriescombinatie, vaatwasser, combimagnetron en 4-pits inductiekookplaat met rvs afzuigkap. Aangrenzend aan de woonkamer is de mooie grote slaapkamer gelegen met eveneens uitzicht op het westen.
De woning beschikt over aluminium kozijnen met veel lichtinval middels de vele ramen met HR++ glas.
Het binnenterrein van het appartementencomplex biedt veel parkeergelegenheid met gras doorlatende bestrating. Een ruime algemene fietsenberging geeft voldoende stalling voor de fietsen.
* Bouwjaar 2023
* Geheel modern afgewerkt en gloednieuw
* Luxe keuken met ingebouwde apparatuur
* Moderne badkamer met vloerverwarming
* Schuifpui naar ruim overdekt balkon op het westen
* Verwarmd middels een warmtepomp met vloerverwarming
* Maandelijkse bijdrage Vereniging van Eigenaren € 117,59
* Voorzien van 3 zonnepanelen
* Woningborggarantie overdraagbaar
* Openbaar parkeren direct voor de deur
* Aanvaarding in overleg, kan snel
* Energielabel A++
* Makelaardij Van der Linden
* Bij verkoop hanteren wij een NVM koopakte model 2023
Het verkoopproces verloopt in zijn geheel via MOVE.nl en daarmee ook het biedingsproces. Biedingen dienen via MOVE te worden ingediend. U ontvangt op het moment dat u een afspraak voor bezichtiging maakt, inloggegevens voor een MOVE account. Via dat account kunt u alle benodigde informatie en documenten inzien en, indien gewenst, een bod uitbrengen.
Deze informatie is door ons met de nodige zorgvuldigheid samengesteld. Onzerzijds wordt echter geen enkele aansprakelijkheid aanvaard voor enige onvolledigheid, onjuistheid of anderszins, dan wel de gevolgen daarvan. Alle opgegeven maten en oppervlakten zijn indicatief.
