Nèt even anders...
In Zwolle zuid staat deze verrassend ruime hoekwoning. Nèt even anders, omdat deze woning anders op het perceel is gelegen dan de andere woningen in de omgeving. De woning beschikt namelijk over een bijzonder ruime voortuin op het zuiden en nog een klein zijtuintje. Door de ligging t.o.v. andere woningen ervaar je veel privacy in zowel de tuin als in de woning.
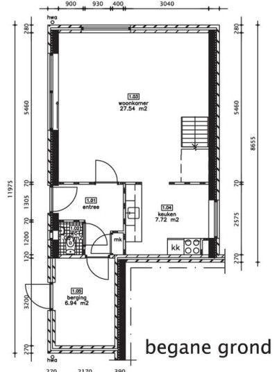
Indeling: entree, hal met een doorgang naar de inpandige berging met vliering, toilet met fonteintje en meterkast. Doorgang naar de ruime woonkamer met schuifpui naar de tuin, halfopen keuken in hoekopstelling, vaste trap naar...
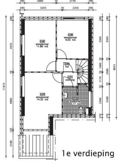
1e verdieping: overloop, drie ruime slaapkamers.
Lees verderDe badkamer is uitgerust met een douchehoek, aansluiting voor de wasmachine, 2e toilet en vaste wastafel.
2e verdieping: voorzolder, aparte ruime stookruimte waarde cv combiketel is geplaatst, tevens is een vierde slaapkamer op deze etage aanwezig.
Achter de woning bevindt zich een mandelig terrein (speeltuin). Hiervoor wordt een jaarlijkse bijdrage van circa € 60,= gevraagd voor het onderhoud.
Bijzonderheden:
Aandeel in het mandelige binnenterrein;
Inpandige berging;
In de keuken warm water middels (huur)boiler;
Projectnotaris Het Notarieel;
Anti-speculatiebeding gedurende twee jaar;
Koper is verplicht gedurende twee jaar het gekochte uitsluitend te gebruiken om zelf (met zijn eventuele gezinsleden) te bewonen en het gekochte niet aan derden te verhuren of op andere wijze in gebruik te geven.
