In Zwolle-Zuid (Gerenlanden) aan de rand van een woonerf gelegen bijzonder ruime woning met aangebouwde stenen berging en maar liefst 4 (slaap)kamers!
De wijk Zwolle Zuid kenmerkt zich door veel groen en is ruim opgezet. Uitvalswegen en voorzieningen zoals scholen, winkels en openbaar vervoer zijn goed bereikbaar.
Bij het verkochte behoort een aandeel in een gezamenlijk terrein. Deze is ingericht als een pleintje met speeltoestellen. De jaarlijkse bijdrage is circa € 60 euro.
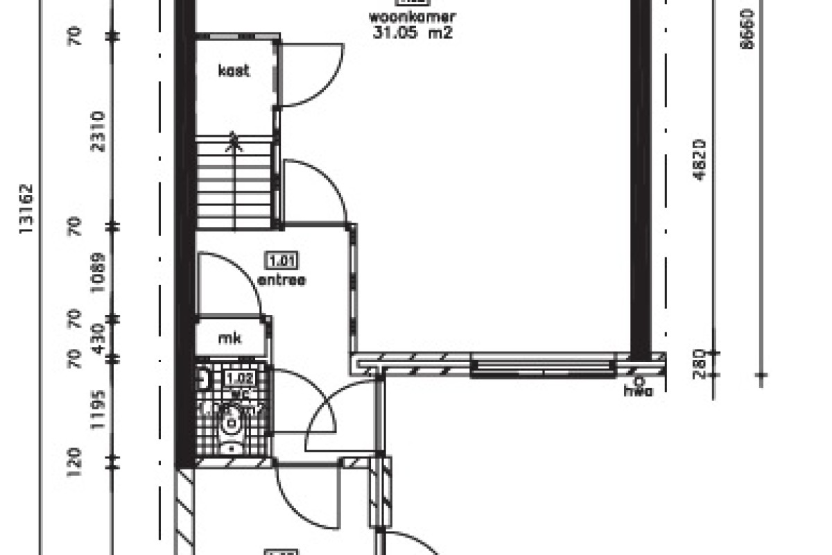
Begane grond:
Entree, meterkast, toilet, Z-vormige woonkamer, aan de achterzijde bevindt zich de dichte keuken. De eetkamer aan de achterzijde beschikt over een schuifpui welke toegang geeft naar de diepe achtertuin met achterom.
Lees verderDe tuin grenst aan de achterzijde aan openbaar groen.
1e Verdieping:
Overloop, 3 slaapkamers en nette badkamer in lichte kleurstelling voorzien van douche, wastafel, 2e toilet en wasmachineaansluiting;
2e Verdieping:
Via een vaste trap bereikbare verdieping met voorzolder, bergruimte met c.v.-opstelling (Intergas 2011 ) en een zeer grote 4e slaapkamer.
Algemeen
- Ruime woning in kindvriendelijke wijk;
- Achterzijde vrij gelegen;
- Projectnotaris: Het Notarieel;
- Anti-speculatiebeding gedurende 2 jaar;
- Koper is gedurende 2 jaar verplicht het gekochte uitsluitend te gebruiken om zelf (met zijn eventuele gezinsleden) te bewonen en het gekochte niet aan derden te verhuren of op andere wijze in gebruik te geven;
De verkoop geschiedt middels een biedingformulier welke u tijdens de bezichtiging aangereikt krijgt.
