In Zwolle-Zuid (Gerenlanden) aan de rand van een woonerf gelegen bijzondere woning met een inpandige stenen berging en 3 (slaap)kamers! De woning is smal aan de voorzijde en zeer breed aan de achterzijde 7,70 meter !
De wijk Zwolle Zuid kenmerkt zich door veel groen en is ruim opgezet. Uitvalswegen en voorzieningen zoals scholen, winkels en openbaar vervoer zijn goed bereikbaar.
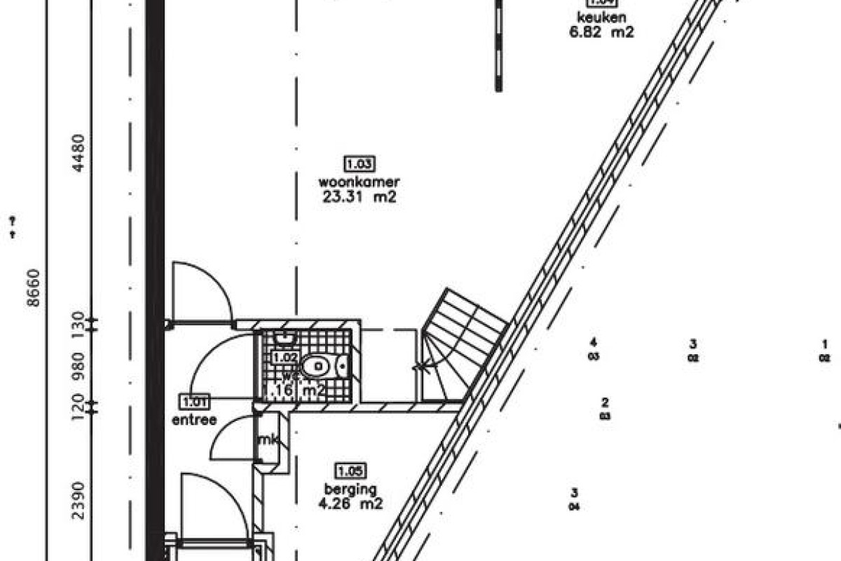
Begane grond:
Entree, meterkast, toilet, tuingerichte woonkamer, aan de achterzijde bevindt zich de halfopen keuken. De woonkamer beschikt over een schuifpui welke toegang geeft naar de diepe achtertuin met achterom. De tuin grenst aan de achterzijde aan openbaar groen.
Lees verder1e Verdieping:
Overloop, 2 slaapkamers en badkamer in lichte kleurstelling voorzien van douche, wastafel, 2e toilet en wasmachineaansluiting;
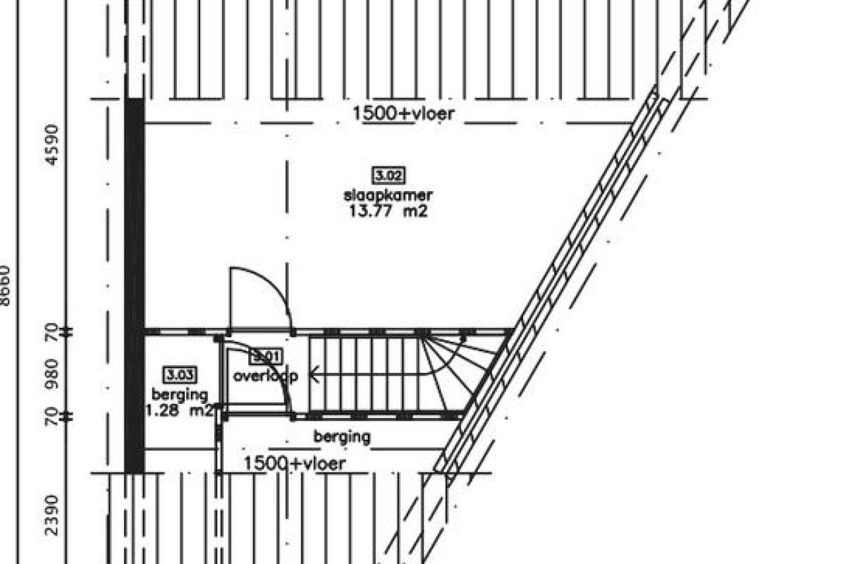
2e Verdieping:
Via een vaste trap bereikbare verdieping met voorzolder, bergruimte met c.v.-opstelling (Intergas 2010 ) en een 3e slaapkamer.
Algemeen
- Ruime woning in kindvriendelijke wijk;
- Asbest aanwezig
- Achterzijde vrij gelegen;
- Projectnotaris: Het Notarieel;
- Anti-speculatiebeding gedurende 2 jaar;
- Koper is gedurende 2 jaar verplicht het gekochte uitsluitend te gebruiken om zelf (met zijn eventuele gezinsleden) te bewonen en het gekochte niet aan derden te verhuren of op andere wijze in gebruik te geven;
