Wegens grote belangstelling is het niet meer mogelijk om een bezichtiging te plannen voor deze woning!
Starters opgelet! Ben je op zoek naar een gezellige woning in een bosrijke omgeving? Dan ben je op Horst 12 5 op het juist adres!
In een rustig straatje in de "rode Horst" ligt deze fijne eengezinswoning, perfect voor starters en kleine gezinnen.
Deze doorzonwoning beschikt o.a. over een woonkamer met veel lichtinval, gemoderniseerde keuken, twee ruime slaapkamers, een keurige badkamer, een zeer ruime vliering en een achtertuin op het oosten.
Neem snel contact op voor een bezichtiging!
Bieden vanaf prijs: € 295.000,- k.k. (starting price).
Lees verderLigging
De woning is gelegen in een rustige en groene buurt in Lelystad, met alle dagelijkse voorzieningen binnen handbereik. Binnen 10 minuten fietsen bereikt u het treinstation Lelystad Centrum en met de auto bereikt u binnen 5 minuten de snelwegen. Winkels, scholen en openbaar vervoer zijn eenvoudig te bereiken, waardoor dit de perfecte plek is voor bijvoorbeeld starters en gezinnen.
Indeling
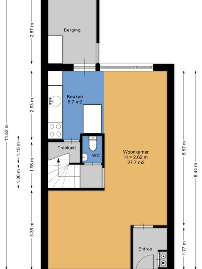
Begane grond
Via de voortuin bereik je de entree van de woning.
Hal met toegang tot de meterkast voorzien van glasvezelaansluiting en deur naar de woonkamer.
Woonkamer
Gezellige woonkamer met veel daglicht. Er is voldoende ruimte voor een heerlijke zithoek en een ruime eethoek.
Keuken
De keuken is aan de achterzijde van de woning gelegen en is voorzien van een koelkast, combi-oven, 4-pits gaskookplaat en een afzuigkap. Hier vind je ook een ruime trapkast, ideaal als provisiekast.
Vanuit de keuken loop je door naar de berging aan de achterzijde van het huis. Deze ruimte leent zich perfect om te gebruiken als bijkeuken.
De vloer van de begane grond is voorzien van laminaat.
Eerste verdieping
Via de vaste trap bereik je de eerste verdieping.
Overloop met toegang tot de slaapkamers en de badkamer.
Slaapkamers
In totaal zijn er twee slaapkamers, waarvan zich zowel aan de voor- als achterzijde een slaapkamer bevindt.
Badkamer
De badkamer is voorzien van een douche, toilet, wasmachineaansluiting en een wastafelmeubel.
Er is een te openen raam voor extra ventilatie.
De vloer van de eerste verdieping is voorzien van laminaat.
Bergvliering
De zeer ruime vliering is ideaal voor het opbergen van al je spullen. Hier vind je ook de opstelplaats van de CV-installatie.
Achtertuin
De achtertuin is gelegen op het oosten. Hier kun je lekker genieten van de ochtendzon.
De tuin is voorzien van bestrating en een hekwerk.
Achter in de tuin staat een kunststof tuinhuis.
Bijzonderheden
- Heerlijke woning in een groene omgeving en centraal gelegen;
- Ruime achtertuin op het oosten;
- Perfecte woning voor starters;
- Zeer geliefde wijk!;
- Energielabel C;
- CV-ketel wordt gehuurd voor €35,- p/m;
- Volledig voorzien van kunststof kozijnen;
- Alle denkbare voorzieningen in de omgeving.
