In de Aa-landen, op loopafstand van het winkelcentrum de Dobbe, in het fraai ontworpen appartementencomplex de Dommel, ruim bemeten 3-kamer appartement (bouwjaar 2007) met berging en twee eigen parkeerplaatsen (gelegen in de afgesloten parkeergarage). Het appartement is gelegen op de begane grond en heeft een vloeroppervlakte van ca. 94 m2. Het complex is van alle gemakken voorzien, zoals een video intercominstallatie, een afgesloten centrale hal met liftinstallatie en een prachtige gezamenlijke binnentuin.
Indeling
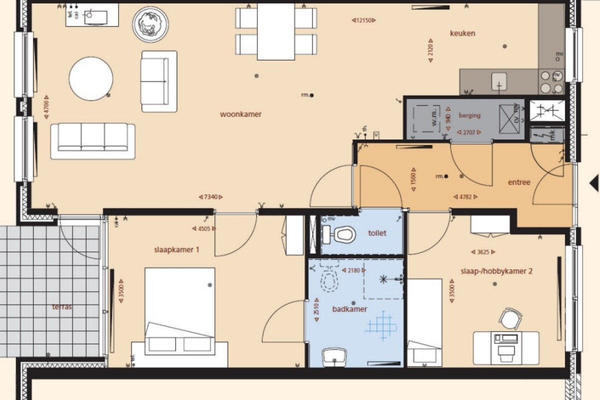
Entree, ruime hal met meterkast, berg-/was-/stookruimte en toilet. Royale woonkamer met toegang tot terras. Keuken in lichte kleurstelling voorzien van inbouwapparatuur.
Lees verderTwee ruime slaapkamers waarvan de hoofdslaapkamer toegang geeft tot de badkamer met douchecabine, toilet en wastafel.
Voor uw auto zijn twee eigen plaatsen gereserveerd in de overzichtelijke parkeerkelder. Op deze etage bevindt zich ook een eigen, afgesloten berging.
Algemeen:
- Bouwjaar 2007
- Bijdrage VVE € 181.72 per maand incl de twee parkeerplaatsen
- Projectnotaris Het Notarieel te Zwolle;
- Anti-speculatiebeding gedurende twee jaar;
- Koper is verplicht het gekochte gedurende twee jaar uitsluitend te gebruiken om zelf (met zijn eventuele gezinsleden) te bewonen en het gekochte niet aan derden te verhuren of op andere wijze in gebruik te geven;
