In het "Vissersdorp" (Aa-landen) gelegen leuke tussenwoning met royale garage over de volledige breedte van het perceel. Vanuit de woonkamer heeft u een schitterend uitzicht richting de Dobbe. De achtertuin is gelegen op het noordwesten. In 2019 is de woning geheel voorzien van dubbel glas en is de buitenzijde geschilderd.
Voorzieningen (o.a. winkelcentrum en scholen) en uitvalswegen zijn in de directe nabijheid.
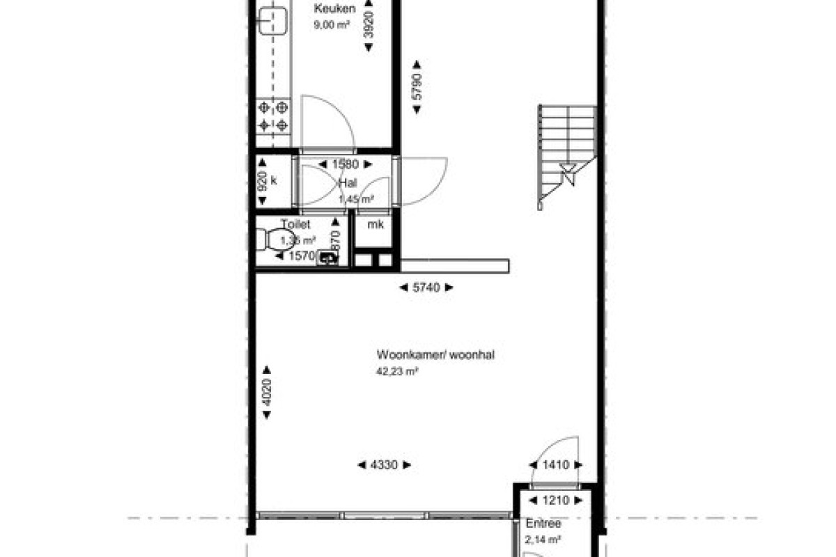
Indeling:
Begane grond: Entree, hal, straatgerichte L-vormige woonkamer, tussenhal met toegang tot toilet, aparte bergkast en de dichte keuken.
1e Verdieping: Ruime overloop, 4 slaapkamers, badkamer met douchecabine, 2e toilet en wastafel.
Lees verder2e Verdieping: middels een luikje te bereiken kleine vliering
Aan de achterzijde bevindt zich een bijzonder ruime garage/berging over de gehele breedte met een elektrische stalen kanteldeur alsmede een separate loopdeur.
Algemeen
Bouwjaar woning 1972;
Projectnotaris: Het Notarieel;
Anti-speculatiebeding gedurende twee jaar;
Koper is verplicht gedurende twee jaar het gekochte uitsluitend te gebruiken om zelf (met zijn eventuele gezinsleden) te bewonen en het gekochte niet aan derden te verhuren of op andere wijze in gebruik te geven.
De verkoop geschiedt middels een biedingformulier welke u tijdens de bezichtiging aangereikt krijgt.
