**English text below**
Op een centrale locatie in Amsterdam Nieuw-West bieden wij dit royale appartement aan, uniek gelegen op EIGEN GROND. Deze fijn en praktisch ingedeelde woning beschikt over een lichte woonkamer, open keuken, balkon op het zuidoosten, drie ruime slaapkamers en een praktische badkamer. De buurt biedt alle voorzieningen op loopafstand, van winkels tot parken. Kortom: een heerlijke woning!
Omgeving:
De woning ligt in de rustige buurt De Punt (Nieuw-West) met alle voorzieningen binnen handbereik. Op loopafstand bevinden zich winkelcentra zoals Dijkgraafplein, Tussenmeer en De Dukaat voor de dagelijkse boodschappen.
Lees verderVoor een uitgebreider winkelaanbod is winkelcentrum Akerpoort, met onder andere een Nike Outlet en MediaMarkt, nabij. In de buurt zijn meerdere scholen, kinderdagverblijven, restaurants en het groene Stadspark Osdorp te vinden. Op fietsafstand liggen het Osdorpplein, theater De Meervaart, de Sloterplas en het Sloterpark voor ontspanning en recreatie.
Bereikbaarheid:
De woning is goed bereikbaar met het openbaar vervoer; tramlijnen 1 en 17 zorgen voor een snelle verbinding naar het centrum, Centraal Station, Station Lelylaan, Schiphol en Station Sloterdijk. Reist u met de auto, dan bent u binnen tien minuten op de A9, A5 of A10.
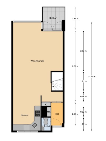
Indeling:
Via de gemeenschappelijke entree bereikt u gemakkelijk met de lift of de trap de vierde verdieping.
Vierde verdieping:
Bij binnenkomst komt u in een hal die toegang biedt tot de riante woonkamer en open keuken. De lichte woonkamer aan de achterzijde van de woning heeft grote raampartijen en biedt toegang tot het balkon op het zonnige zuidoosten. Aan de voorzijde van de woning vindt u de praktische keuken, die is voorzien van diverse inbouwapparatuur. Ook bevindt zich op de vierde verdieping een separaat toilet.
Derde verdieping:
Via de vaste trap gaat u naar de derde verdieping. Deze verdieping beschikt over drie slaapkamers, een praktische badkamer, een trappenkast en een wasruimte. De gehele verdieping is voorzien van een laminaatvloer. Aan de achterzijde van de woning bevinden zich twee ruime slaapkamers. De hoofdslaapkamer aan de achterzijde is tevens voorzien van een ruime kast. De badkamer bevindt zich aan de voorzijde van de woning en is voorzien van een wastafel met spiegelkast, ligbad en toilet.
Tevens is er een externe berging aanwezig in de kelder van het complex.
Vereniging van Eigenaren:
De Vereniging van Eigenaren (VvE) is gezond en actief en wordt professioneel beheerd. Voor deze woning en de berging zijn de maandelijkse servicekosten vastgesteld op € 294,14 per maand, exclusief een voorschot voor de stookkosten van € 143,-. De administrateur draagt onder andere zorg voor het financieel en administratief beheer, evenals de bestuurlijke en technische ondersteuning.
Grondsituatie:
Het appartement is gelegen op EIGEN GROND.
Bijzonderheden:
- Woonoppervlakte 99,1 m² (conform NEN 2580 meetrapport);
- Bouwjaar 1970;
- Energielabel B;
- In 2022 volledig gerenoveerd;
- EIGEN GROND;
- Bijdrage VvE € 294,14 per maand (excl. voorschot stookkosten € 143,-);
- Externe berging van circa 5 m²;
- Balkon op het zuidoosten;
- Oplevering in overleg, kan spoedig.
**English text**
In a central location in Amsterdam Nieuw-West, we offer this spacious apartment, uniquely situated on PRIVATE LAND (no ground lease). This pleasantly and practically laid-out home features a bright living room, open kitchen, southeast-facing balcony, three generous bedrooms, and a functional bathroom. The neighborhood offers all amenities within walking distance, from shops to parks. In short, a wonderful place to call home!
Surroundings
The property is located in the quiet neighborhood of De Punt (Nieuw-West), with all amenities at hand. Within walking distance, you'll find shopping centers such as Dijkgraafplein, Tussenmeer, and De Dukaat for daily groceries. For a wider range of shopping, Akerpoort shopping center, which includes Nike Outlet and Mediamarkt, is nearby. The area also has multiple schools, daycare centers, restaurants, and the green Stadspark Osdorp. For relaxation and recreation, Osdorpplein, De Meervaart Theater, Sloterplas, and Sloterpark are within cycling distance.
Accessibility
The property is well connected by public transport; tram lines 1 and 17 provide quick access to the city center, Central Station, Lelylaan Station, Schiphol, and Sloterdijk Station. If traveling by car, you'll be on the A9, A5, or A10 highways in under ten minutes.
Layout
You can easily reach the fourth floor via the shared entrance, using the lift or stairs.
Fourth floor:
Upon entering, you come into a hallway that provides access to the spacious living room and open kitchen. The bright living room, located at the rear of the property, has large windows and provides access to the balcony facing the sunny southeast. The practical kitchen is situated at the front of the property and is equipped with various built-in appliances. There is also a separate toilet on the fourth floor.
Third floor:
A fixed staircase leads to the third floor, which contains three bedrooms, a practical bathroom, a storage closet, and a laundry room. The entire floor has a laminate floor. At the rear of the property, there are two large bedrooms. The master bedroom at the back also has a spacious wardrobe. The bathroom is located at the front of the property and is equipped with a sink with a mirrored cabinet, bathtub, and toilet.
Additionally, there is an external storage room located in the basement of the building.
Homeowners Association (VvE):
The Homeowners Association (VvE) is in a healthy and active state and is professionally managed. The monthly service costs for this property and storage unit are set at €294.14 per month, excluding an advance payment for heating costs of €143. The administrator handles the financial and administrative management, as well as the administrative and technical support.
Land Situation:
The apartment is situated on FREEHOLD LAND.
Details:
- Living area 99.1 m² (as per NEN 2580 measurement report);
- Year of construction: 1970;
- Energy label B;
- Fully renovated in 2022;
- FREEHOLD LAND;
- VvE contribution €294.14 per month (excluding heating advance of €143);
- External storage of approximately 5m²;
- Balcony facing Southeast;
- Delivery by mutual agreement, can be soon.
