Wonen aan een autovrij groen hofje in de geliefde Literatuurwijk.
Rustig wonen, veilig voor de deur kunnen spelen en toch alle voorzieningen dichtbij: deze speelse en lichte woning ligt aan een autovrij en groen hofje in de geliefde Literatuurwijk. Een fijne plek voor gezinnen, stellen en internationals die comfortabel willen wonen in een rustige, ruim opgezette wijk.
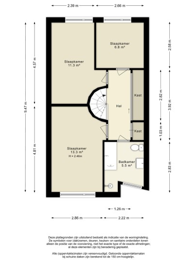
De woning is praktisch ingedeeld met een tuingerichte woonkamer, een open keuken aan de voorzijde met zicht op groen, drie slaapkamers, een complete badkamer en een ruime overloop met vaste kast en wasmachineaansluiting. Parkeren kan gemakkelijk in de parkeervakken aan het begin van het hofje.
Lees verderDe ligging en locatie zijn ideaal; de wijk is ruim en groen opgezet, met vele speelplaatsen en waterpartijen. U hoeft voor uw dagelijkse boodschappen niet ver te lopen; op nog geen minuut loopafstand is een supermarkt te vinden. Op fietsafstand vindt u het winkelcentrum van Muziekwijk en een treinstation, maar ook het stadshart van Almere is op korte afstand gelegen. Andere voorzieningen zoals (internationale) scholen, strand, bos, park, winkels, een gezondheidscentrum en openbaar vervoer liggen in de nabije omgeving. Ook de uitvalswegen naar de Randstad zijn snel bereikbaar; Amsterdam ligt op circa 25 minuten.
English introduction:
Light filled family home in a green, car free courtyard, offering peace and safety while being close to all amenities. Located in the popular Literatuurwijk, with supermarkets, public transport and international schools nearby. A comfortable home in a well connected, spacious neighbourhood and front door located northeast.
Indeling begane grond:
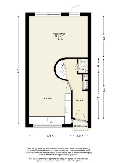
Via de voortuin bereik je de entree van de woning. In de hal bevinden zich het toilet, de meterkast en de trap naar de eerste verdieping.
De open keuken aan de voorzijde kijkt uit op het groene hofje en is uitgevoerd in lichte tinten in een hoekopstelling. De keuken is voorzien van diverse inbouwapparatuur, waaronder een inductiekookplaat, afzuigkap, vaatwasser, koelkast, vriezer en combi oven, en beschikt over voldoende opbergruimte.
De tuingerichte woonkamer is aangenaam licht dankzij de schuifpui met zijraam. Via de schuifpui heb je direct toegang tot de achtertuin, gelegen op het zuidwesten - ideaal voor middag- en avondzon. De benedenverdieping heeft een nette parketvloer.
Eerste verdieping:
De eerste verdieping beschikt over drie slaapkamers, een complete badkamer en een separate wasruimte. De overloop is voorzien van een praktische vaste kastenwand, ideaal voor extra bergruimte.
De badkamer is betegeld tot aan het plafond en uitgerust met een ligbad, inloopdouche, toilet, wastafel en een raam voor natuurlijke ventilatie. In de separate wasruimte bevinden zich de aansluiting voor de was droogcombinatie en de mechanische ventilatie unit. De slaapkamers en overloop zijn voorzien van een nette laminaatvloer.
Tuin:
De woning beschikt over zowel een voor- als achtertuin. De verzorgde achtertuin op het zuidwesten is voorzien van bestrating en beplanting, een zonnescherm, houten berging, schuttingen en een achterom.
Bijzonderheden:
- De woning wordt middels een bieden-vanaf prijs aangeboden;
- Veel voorzieningen op loop- en fietsafstand (nabij internationale school);
- Sfeervolle woning gelegen aan een autovrij hofje;
- Zonnige achtertuin op het zuidwesten;
- Energielabel A, geldig tot 02 04 2036;
- Front door located northeast;
- Aanvaarding in overleg.
