In Zwolle Zuid aan een autovrije straat, staat dit verrassend ruim woonhuis met diepe achtertuin op het noordoosten. Het object staat op een perceel van maar liefst 163 m2 en beschikt aan de voorzijde over een vrijstaande stenen berging.
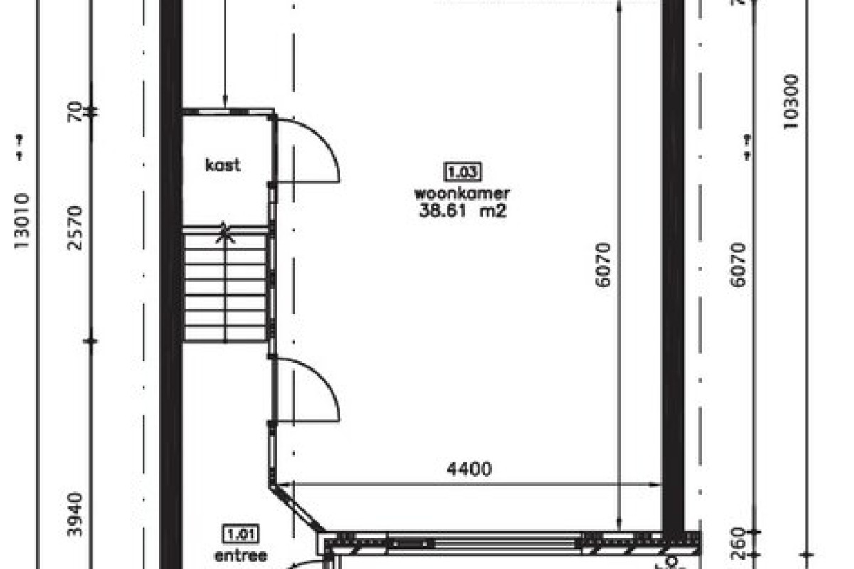
Indeling: hal met toilet en fonteintje, meterkast,
woonkamer met trapkast. de dichte keuken is aan de achterzijde gesitueerd.
1e Verdieping:overloop, 3 slaapkamers, badkamer voorzien van een toilet,
douche, wasmachineaansluiting en wastafel;
2e Verdieping:“voorzolder”, 4e slaapkamer en een stookruimte met c.v.-opstelling (Intergas 2011 .
Lees verder)
Algemeen:
- Vrije ligging in het groen;
- Royale woning
- er is asbest aanwezig
- voormalige huurwoning
- Projectnotaris Het Notarieel;
- Anti-speculatiebeding gedurende twee jaar;
- Koper is gedurende twee jaar verplicht het gekochte uitsluitend te gebruiken om zelf (met zijn eventuele gezinsleden) te bewonen en het gekochte niet aan derden te verhuren of op andere wijze in gebruik te geven;
De verkoop geschiedt middels een biedingformulier welke u tijdens de bezichtiging aangereikt krijgt.
