Home / Woning huren / Aanbod / Salieristraat 11 Haarlem

Salieristraat 11

Verhuurd per maand

Haarlem

€ 1.750 per maand

Haarlem


Type woning
Appartement

Woon oppervlakte
99 m²

Totaal
99 m²

Aantal kamers
3

Over de woning

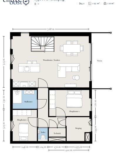
(NL) In de wijk Vijverpark mogen wij deze goed onderhouden driekamer maisonnette met twee slaapkamers en een luxe keuken en balkon aanbieden voor de verhuur.

De woning is gebouwd in 2022 en beschikt over alle gemakken die je als bewoner wenst. De woning is voorzien van een ruime hal op de begane grond met toegang tot de inpandige berging, meterkast en trapopgang naar de eerste verdieping. Op de eerste verdieping zijn de woonkamer, keuken, twee slaapkamers, wasmachine-ruimte en badkamer en separaat toilet gelegen.

De woonkamer is gelegen aan het dakterras. Het dakterras is te bereiken vanuit de woonkamer door middel van een schuifpui. Aangrenzend aan de woonkamer is de lichte en open keuken met spoeleiland en diverse inbouwapparatuur gesitueerd. Beide slaapkamers zijn knus en bieden vele mogelijkheden. De badkamer is voorzien van een wastafel met lades en een douchehoek met glazen douchewand. Er zijn een separaat toilet en ruime wasmachine-ruimte aanwezig.

Bijzonderheden Salieristraat 11
- Beschikbaar per 1 februari 2024
- Driekamer maisonnette
- Woonoppervlakte ca. 95 m²
- Keuken met spoeleiland voorzien van elektrische kookplaat, afzuigkap, combi-oven, koel- en vriescombinatie en vaatwasmachine
- Twee slaapkamers aanwezig
- Badkamer met wastafel en douchehoek
- Separaat toilet
- Balkon aanwezig
- Inpandige berging aanwezig

Inkomensrichtlijnen
- Om in aanmerking te komen voor deze woning worden er inkomensrichtlijnen gehanteerd. Het bruto maandsalaris dient minimaal 4 keer de vermelde huurprijs te zijn
- Er wordt een waarborgsom van 1 keer de huurprijs gevraagd. Bij zelfstandig ondernemerschap vragen wij een waarborgsom van 2 keer de huurprijs
- Ben je een zelfstandig ondernemer, gepensioneerd of wil je meer informatie over de inkomensrichtlijnen? Ga dan voor meer informatie naar onze website: vanderlinden.nl/woning-huren/faq

Goed om te weten
- Een huurovereenkomst wordt aangegaan voor minimaal 12 maanden. Na 12 maanden is de huurovereenkomst maandelijks opzegbaar met inachtneming van de gestelde opzegtermijn
- Getoonde foto's dienen als voorbeeld en zijn niet van de woning zelf

Alle informatie met betrekking tot de woning is met zorg samengesteld. Deze is echter indicatief en er kunnen geen rechten aan ontleend worden.

(EN) In the Vijverpark neighborhood, we may offer for rent this well-maintained three-bedroom maisonette with two bedrooms and a luxury kitchen and balcony.

The house was built in 2022 and has all the conveniences you want as a resident. The property features a spacious hall on the first floor with access to the indoor storage room, meter cupboard and staircase to the second floor. On the second floor are the living room, kitchen, two bedrooms, laundry room and bathroom and separate toilet located.

The living room is located on the roof terrace. The roof terrace is accessible from the living room through a sliding door. Adjacent to the living room is the bright and open kitchen with sink island and various appliances located. Both bedrooms are cozy and offer many possibilities. The bathroom has a sink with drawers and a shower corner with glass shower enclosure. There is a separate toilet and spacious laundry room.

Details Salieristraat 11
- Available from 1 February 2024
- Three room maisonette
- Living area approx 95 m²
- Kitchen with sink island equipped with electric hob, extractor, microwave oven, fridge-freezer and dishwasher
- Two bedrooms
- Bathroom with sink and shower
- Separate toilet
- Balcony
- Storage present

Income Guidelines
- Income guidelines are used to qualify for this property. Gross monthly salary must be at least 4 times the listed rent
- A security deposit of 1 time the rent is required. If you are self-employed, we require a deposit of 2 times the rent.
- Are you self-employed, retired or want more information on income guidelines? Please visit our website for more information: vanderlinden.nl/woning-huren/faq

Good to know
- A rental agreement is entered into for a minimum of 12 months. After 12 months the rental agreement can be terminated on a monthly basis, taking into account the specified notice period
- Pictures shown are examples and are not of the property itself

All information regarding the property has been compiled with care. However, it is indicative and no rights can be derived from it.

Hier ga je wonen

Salieristraat 11 Haarlem

MAP

Plattegronden

Ja, ik heb interesse in deze woning

Inloggen in mijn IDD accountHeb je al een IDD account? Log dan nu in om je interesse in deze woning aan te geven.

Heb je nog geen IDD account? Vul dan onderstaand formulier in, we maken dan direct ook een IDD account voor je aan.

Je contactgegevens

   

Je inkomensgegevens

Huidige woonsituatie

Je partner

* verplichte velden