Home / Woning huren / Aanbod / Zeewolde

Oudaen

Verhuurd (belangstellendenlijst)

Zeewolde

€ 980 - € 1.125

Zeewolde

Over de woning

Aqualandia, 32 luxe appartementen met een kleinschalig karakter. De appartementen hebben een unieke ligging aan het water. U bent omgeven door landelijke schoonheid met vele recreatiemogelijkheden.

De appartementen zijn verdeeld over vier woonlagen en heerlijk ruim van opzet met veel lichtinval. Elke woning is hoogwaardig afgewerkt en heeft een eigen (ondergrondse of buiten) parkeerplaats. Ook aan uw veiligheid is gedacht. Via een videofooninstallatie weet u altijd wie er bij u aanbelt.

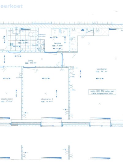
Er zijn 3 en 4 kamer appartementen die variëren in grootte van 95 m2 tot 132 m2 en verschillen van opzet.

Type Snip:
Dit riante appartement van 125 m2 heeft maar liefst 3 ruime slaapkamers. Via de hal heeft u toegang tot deze kamers en tot de badkamer, welke voorzien is van een ligbad, separate douchehoek en 2e toilet. De kleurstelling varieert, maar is meest wit met een donkere vloertegel. Vanuit de hal komt u in de woonkamer, welke zeer ruim is. De luxe keuken welke voorzien is van diverse inbouwapparatuur is gelegen aan de gang. Het zitgedeelte is bij het raam, zodat u kunt genieten van het uitzicht. Vanuit de woonkamer heeft u toegang tot het balkon. Deze appartementen kijken of op het oosten of op het westen.

Type Fuut:
Dit kleinere type van 96 m2 is nog steeds erg ruim. Er zijn 2 grote slaapkamers en een lichte woonkamer doordat deze op de hoek gelegen is. Van twee kanten heeft u lichtinval. De badkamer is opnieuw zeer luxe met een ligbad, douchehoek, wastafel en 2e toilet.

Gelegen aan de rand van Flevoland ligt Zeewolde, rustig en centraal in het land met prima aansluitingen op het wegennet. Zeewolde heeft prima openbaar vervoerverbindingen. Er zijn goede busverbindingen naar Harderwijk, Nijkerk, Almere of Amersfoort. Met de trein vertrekt u vanaf Station Harderwijk.
Aan de noordwestkant van Zeewolde ligt de groene en waterrijke polderwijk.. Polderwijk wordt door water met de bestaande kern van Zeewolde verbonden. Deze waterverbinding mondt uit in de Centrale Plas. Hierlangs verrijst een prachtige lommerrijke bomenlaan met brede grasbermen. Polderwijk staat in verbinding met de Flevolandse wateren, wat boottochten vanuit uw eigen wijk mogelijk maakt. Een uniek pluspunt. Met het centrum van Zeewolde om de hoek heeft u alle voorzieningen binnen handbereik. Denk hierbij aan winkels, gezondheidscentrum, sportfaciliteiten etc.

- Inkomensrichtlijnen -
• Om in aanmerking te komen voor deze woning is het goed te weten dat we hiervoor inkomensrichtlijnen hanteren. Als alleenverdiener bedraagt je bruto maandsalaris (inclusief vakantiegeld en 13e maand) 4x keer de vermelde huurprijs van deze woning.
• Voor tweeverdieners tellen wij het tweede inkomen voor 100% mee.
• Rekenvoorbeeld: het bruto (gezamenlijke inkomen) maandinkomen voor een woning die € 1.000,- per maand kost is dus € 4.000 (1.000 x 4).
• In sommige gevallen is een waarborgsom verplicht.
• Ben je een zelfstandig ondernemer, gepensioneerd of meer informatie over de inkomensrichtlijnen? Ga naar dan naar onze website: vanderlinden.nl/woning-huren/faq

- Wil je in aanmerking komen voor deze woning? -
Ben je enthousiast geworden over deze woning en voldoe je aan de inkomensrichtlijnen? Schrijf je dan in via vanderlinden.nl/woning-huren als woningzoekende.

Bij het selecteren van de meest geschikte kandidaat maken wij enkel gebruik van objectieve selectiecriteria zoals leeftijd, de hoogte van het inkomen in relatie tot de hoogte van de huur, gezinsomvang en soortgelijke criteria.
Hierbij maken wij in geen enkele situatie positieve of negatieve uitzonderingen op basis van geslacht, huidskleur, achternaam, geaardheid, afkomst, geloof of etniciteit van de woningzoekende.

Als er meerdere, vergelijkbare inschrijvingen op een woning zijn, dan zal er een willekeurig dossier gekozen worden op volgorde van binnenkomst.
Je ontvangt hier dan vanzelf bericht over. Mocht je niets hebben vernomen, dan ben je helaas niet geselecteerd. Je kunt uiteraard altijd contact met ons opnemen waarom er gekozen is voor een andere kandidaat.
Wanneer je zoveel mogelijk kans wilt maken op een woning, raden we je aan om meerdere voorkeuren door te geven indien je in meerdere woningen geïnteresseerd bent.

- Goed om te weten -
• Getoonde foto's zijn van een modelwoning en niet van de specifieke woning zelf.
• De huurovereenkomst wordt aangegaan voor de duur van 12 maanden. Na deze periode is deze maandelijks opzegbaar, de opzegtermijn bedraagt één maand.

Alle informatie met betrekking tot de woning is met zorg samengesteld. Deze is echter indicatief en er kunnen geen rechten aan ontleend worden.

Hier ga je wonen

Zeewolde

MAP

Plattegronden

Ja, ik heb interesse in deze woning

Inloggen in mijn IDD accountHeb je al een IDD account? Log dan nu in om je interesse in deze woning aan te geven.

Heb je nog geen IDD account? Vul dan onderstaand formulier in, we maken dan direct ook een IDD account voor je aan.

Je contactgegevens

   

Je inkomensgegevens

Huidige woonsituatie

Je partner

* verplichte velden