Aan de Pieter Calandlaan gelegen, tussen de Baden Powelweg en het stadspark Osdorp, is deze casco kantoorruimte gelegen. De Pieter Calandlaan is een lang straat die loopt vanaf station Lelylaan tot aan het Ecuplein. In dit gedeelte van de Pieter Calandlaan is een diversiteit aan bedrijven en winkels gevestigd. De beschikbare ruimte is verdeeld over een begane grond en een beletage en is goed onderhouden. Het open karakter van dit object en de verdeling over de begane grond en de beletage geven dit object een speels karakter. Aan de voorzijde bevinden zicht grote ramen en de entree.
LOCATIE
De locatie aan de Pieter Calandlaan is gunstig ten opzichte van het openbaar vervoer naar het centrum van Amsterdam en de uitvalswegen.
Lees verderDe ruimte is gunstig gelegen in de straat waar diverse voorzieningen aanwezig zijn.
Bestemming
De bestemming is Gemengd -4: Dienstverlening (zakelijke dienstverlening en kantoor) en praktijkruimte.
(Horeca en detailhandel zijn niet toegestaan)
BEREIKBAARHEID
Per auto
Met de auto is het uitstekend bereikbaar vanaf de ringweg A10 west via de S107. Maar ook de A4 en de A5 zijn op zeer korte afstand gelegen en uitstekend bereikbaar.
Per openbaar vervoer:
Voor de deur vertrekt tram 1 via het centrum richting Station Muiderpoort en richting Osdorp De Aker en bus 63 richting station Lelylaan, waar de metro en diverse trein verbindingen zijn, en Osdorp De Aker.
PARKEREN
Vrij parkeren op straat.
METRAGE
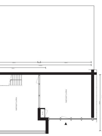
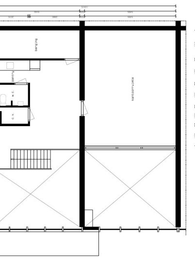
Circa 132 m² V.V.O. casco kantoorruimte beschikbaar verdeeld over een begane grond en een beletage.
OPLEVERNIVEAU EN VOORZIENINGEN
De kantoorruimte zal in casco staat worden verhuurd, inclusief:
- Huidige (casco) staat.
- Huidige kamerindeling.
- Toiletvoorziening.
- Hoge plafonds aan de straatzijde.
- 24/7 toegankelijkheid.
- Mechanische ventilatie.
HUURPRIJS
€ 1.725,- per maand te vermeerderen met BTW en servicekosten.
SERVICEKOSTEN
P.M.
Huurder zal direct belast worden door de nutsbedrijven. Mocht dit om technische of andere redenen niet mogelijk zijn dan zal een nog vast te stellen voorschot worden geheven waarbij aan het einde van een periode verrekening plaats vindt op basis van de werkelijke kosten.
HUURTERMIJN
5 (vijf) jaren met een verlengingsperiode van 5 (vijf) jaren, opzegtermijn 12 (twaalf) maanden, afwijkende huurtermijnen in overleg.
BETALINGEN
Huur, servicekosten en BTW per maand vooruit.
ZEKERHEIDSSTELLING
Een waarborgsom ca. 3 maanden huur, servicekosten en BTW.
BESCHIKBAARHEID
In overleg, op korte termijn mogelijk.
HUUROVEREENKOMST
Huurovereenkomst kantoorruimte en andere bedrijfsruimte in de zin van artikel 7:230a BW gebaseerd op het model door de Raad voor Onroerende Zaken (ROZ).
BTW
Huurder verklaart het gehuurde voor tenminste 90% te zullen gebruiken voor prestaties die recht geven op aftrek van omzetbelasting. Indien huurder op enig moment niet meer aan het criterium voldoet, zal er van rechtswege sprake zijn van omzetbelasting vrijgestelde verhuur. Alsdan wordt de overeengekomen kale huurprijs, exclusief omzetbelasting, zodanig verhoogd dat het voor verhuurder ontstane financiële nadeel wordt gecompenseerd.
VOORBEHOUD
Voorbehoud van goedkeuring verhuurder. De vermelde informatie is van algemene aard en is niet meer dan een uitnodiging om in onderhandeling te treden. Aan de inhoud van deze informatie kunnen geen rechten worden ontleend.
INFORMATIE
Van der Linden Bedrijfsmakelaars
onderdeel Van der Linden Groep
Bos en Lommerplein 309-311
1055 RW AMSTERDAM
Tel: 020-5 712 712
Vestigingen: Amsterdam, Almere, Lelystad, Haarlem, Dronten, Zwolle
