De kantoorruimte is gelegen in de Vogelbuurt in Amsterdam Noord. Amsterdam Noord is een populair gebied en erg in ontwikkeling. Op de begane grond op de hoek van het blok aan de Fazantenweg en de wandel- fietsroute naar de Johan van Hasseltweg is de beschikbare kantoorruimte gelegen. In de directe omgeving van het object bevinden zich verschillende voorzieningen als winkels, bedrijfsruimtes en supermarkten. Aan de andere kant van de Johan van Hasseltweg bevinden zich het Vliegenbos en het Noorderpark. Ook metrohalte Noorderpark en winkelcentrum Mosplein waar ook diverse restaurantjes zijn gevestigd, zijn op loopafstand.
VERHUURBARE OPPERVLAKTE:
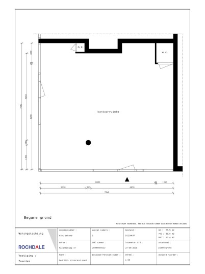
Circa 58 m² V.V.O. kantoor-/winkelruimte gelegen op de begane grond.
Lees verderVOORZIENINGEN:
De ruimte is voorzien van:
- toilet;
- pantry.
BEREIKBAARHEID:
Het object is zowel per auto (ring A10 Noord afslag S116) als openbaar vervoer (metro Noord-Zuidlijn, halte Noorderpark en bus 35) goed bereikbaar. Binnen 5 minuten fietsen bent u via de pont op Amsterdam C.S.
PARKEREN:
Er is voldoende openbare parkeergelegenheid in de nabijheid van het pand waar u betaald kunt parkeren.
HUURPRIJS:
€ 725,- per maand te vermeerderen met BTW.
ZEKERHEIDSSTELLING:
Een bankgarantie/waarborgsom gelijk aan 3 maanden huur en servicekosten te vermeerderen met BTW.
SERVICEKOSTEN:
P.M.
Huurder zal direct belast worden door de nutsbedrijven. Mocht dit om technische of andere redenen niet mogelijk zijn, dan zal een nog vast te stellen voorschot worden geheven waarbij aan het einde van een periode verrekening plaats vindt op basis van de werkelijke kosten.
HUURBETALING:
Per maand vooruit.
B.T.W.:
Huurder verklaart dat hij voor tenminste 90% met omzetbelasting belast prestaties verricht. Indien huurder op enig moment niet meer aan dit criterium voldoet, zal er van rechtswege sprake zijn van omzetbelasting vrijgestelde verhuur. Alsdan wordt de overeengekomen kale huurprijs, exclusief omzetbelasting, zodanig verhoogd dat het voor de verhuurder ontstane financiële nadeel wordt gecompenseerd.
HUURINDEXATIE:
De huurprijs wordt jaarlijks geïndexeerd, voor het eerst één jaar na huuringangsdatum, op basis van het prijsindexcijfer volgens de consumentenprijsindex (CPI) reeks Alle Huishoudens (2015 = 100) gepubliceerd door het Centraal Bureau voor de Statistiek (CBS).
HUURTERMIJN:
- 5 (vijf) jaren met een verlengingsperiode van 5 (vijf) jaren;
- opzegtermijn 12 (twaalf) maanden, afwijkende huurtermijnen in overleg.
HUUROVEREENKOMST:
Op basis van het standaard huurcontract, zoals opgesteld door de Raad voor Onroerende Zaken (ROZ) model 2015.
OPLEVERING:
In overleg.
INLICHTINGEN:
Van der Linden Makelaardij
Bos en Lommerplein 309-311
1055 RW AMSTERDAM
Tel: 020-5 712 712
Fax: 020-6 753 662
E-mail: info.amsterdam@vanderlinden.nl
Website: www.vanderlinden.nl
