Wegens het grote aantal aanvragen is het helaas niet meer mogelijk om een bezichtiging in te plannen voor deze woning!
Klussers opgelet! Jouw ideale kluswoning met volop potentie!
Deze HOEKWONING wacht op een nieuwe eigenaar die met liefde, tijd en creativiteit het volledige potentieel wil benutten. Perfect voor handige klussers die de woning helemaal naar eigen smaak willen afwerken!
Met vier slaapkamers, een garage en parkeergelegenheid op eigen terrein, biedt deze woning volop ruimte voor een gezin. De ruime achtertuin op het noorden is een rustige plek om van het buitenleven te genieten. De woning heeft energielabel B, wat betekent dat ze al redelijk energiezuinig is, maar er is zeker ruimte voor verdere verbetering.
Lees verderLocatie: De woning ligt op loopafstand van de Jumbo, gezondheidscentrum, basisscholen en diverse sport- en recreatiemogelijkheden. Uitvalswegen naar de A6, Dronten, Almere en Harderwijk zijn binnen 5 auto-minuten bereikbaar.
Met een "bieden vanaf" prijs van € 295.000,- k.k. is dit een uitstekende kans voor zowel jong als oud!
Indeling
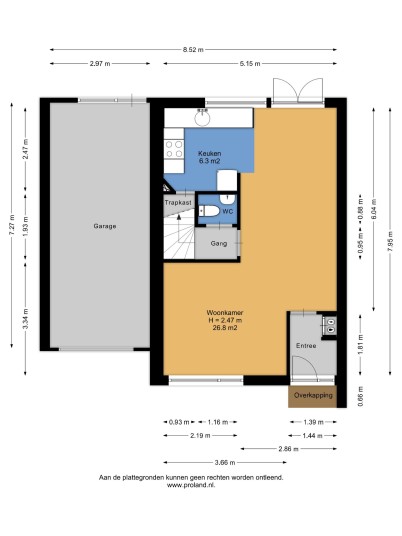
Begane grond
Entree met toegang tot de meterkast (glasvezelaansluiting), toilet met fonteintje, trap naar de eerste verdieping en deur naar de woonkamer.
Lichte woonkamer met ruimte voor een comfortabele zithoek.
De keuken aan de achterzijde van de woning gesitueerd en is voorzien van losse apparatuur (4-pits gasfornuis, oven, afzuigkap en aansluiting voor vaatwasser).
De keuken is gedateerd, maar biedt volop mogelijkheden voor een moderne upgrade.
Er is ruimte voor een eettafel
Via dubbele openslaande deuren toegang tot de achtertuin.
De begane grond is voorzien van een laminaatvloer, de keuken van plavuizen.
Eerste verdieping
Overloop met toegang tot de slaapkamers en de badkamer.
In totaal zijn er drie slaapkamers op de eerste verdieping.
De badkamer heeft een ligbad (douchen in bad) en een wastafel.
De vloer van de eerste verdieping is voorzien van laminaat.
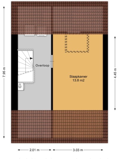
Tweede verdieping
Overloop met opstelplaats voor de cv-ketel en aansluitingen voor de wasmachine en droger.
Toegang tot de vierde slaapkamer.
De vloer is voorzien van tapijttegels.
Tuin
Via de voortuin met parkeergelegenheid op eigen terrein, bereikt u de entree van de woning.
Aangelegde achtertuin op het noorden, met bestrating, schuttingen en een vijver.
Garage
Aangebouwde houten garage met kanteldeur en elektra.
Ideaal voor het stallen van een auto, fietsen of als extra bergruimte.
Bijzonderheden
- HOEK woning met veel potentie en mogelijkheden;
- Aangebouwde houten garage;
- Parkeren op eigen terrein;
- Vier slaapkamers;
- Energielabel B;
- Kluswoning;
- Er is toestemming van de rechter nodig;
- Aanvaarding in overleg.
