Let op! Deze vraagprijs betreft een "Bieden vanaf prijs".
Deze modern afgewerkte vrijstaande woning is op een zeer gewilde locatie gelegen in wijk "De Gilden" te Dronten. De woning is aan de achterzijde vrij gelegen. Het perceel van 226m2 beschikt over een oprit met parkeergelegenheid alsmede een achterom naar de onderhoudsarme aangelegde tuin op het oosten. De laatste hand is net gelegd aan deze woonwijk, waardoor de gehele woonwijk een frisse nieuwe uitstraling geeft. Op loopafstand (3 minuten) is het winkelcentrum Dronten West gelegen waar de nodige winkels, scholen en een gezondheidscentrum aanwezig zijn.
Lees verderTevens zijn uitvalswegen naar Almere en Zwolle nabij gelegen en geeft het nabij gelegen Wisentbos de mogelijkheid voor een heerlijke boswandeling.
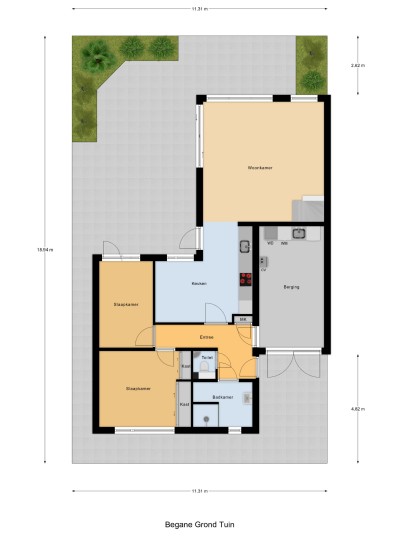
Indeling:
Begane grond: overdekt entree, hal met garderobe mogelijkheid, toiletruimte met hangcloset en fonteintje, meterkast, binnendoor naar de aangebouwde en geïsoleerde garage welke beschikt over een betonvloer voorzien van plavuizen, wasmachineaansluiting, opstelplaats van de c.v.-ketel, mechanische ventilatie unit en openslaande houten deuren naar de oprit.
Vanuit de hal kom je in de luxe moderne open keuken met aangrenzend de eethoek en doorgang naar de woonkamer. De keuken is voorzien van veel kastruimte en beschikt over een ingebouwde koelkast, vaatwasser, 1,5 spoelbak, combimagnetron, 4 pits inductie kookplaat en een rvs afzuigkap en een loopdeur naar de tuin. De tuingerichte woonkamer is ruim van opzet en heerlijk licht door de grote raampartijen. De woonkamer is voorzien van een dichte vaste trap naar de etage en een schuifpui naar het terras en de tuin.
Vanuit de hal zijn tevens de twee slaapkamers op de begane grond te bereiken. Aan de voorzijde van de woning zij een ruime slaapkamer en badkamer gesitueerd. De slaapkamer is voorzien van een op maat gemaakte inbouwkast en de badkamer beschikt over een inloopdouche met glasdeur, designradiator, vloerverwarming en een wastafel. Aan de achterzijde is de 2e slaapkamer gelegen welke tevens van een prettige maatvoering is en is voorzien van een deur naar het terras. De begane grond vloer is voorzien van pvc vloeren waarbij de slaapvertrekken zijn voorzien van tapijt.
De tuin is vanuit de kleine slaapkamer en de eethoek met een loopdeur te betreden en vanuit de woonkamer middels een schuifpui met hor te betreden en is onderhoudsarme en verzorgd aangelegd.
Eerste verdieping: vast trap naar de ruime en lichte verdieping met de mogelijkheid om hier nog een slaap en badkamer te realiseren. De volledige eerste etage is voorzien van een nette laminaatvloer.
* Bouwjaar: 2012, perceeloppervlakte: 226m2
* Modern afgewerkt en goed onderhouden
* Slaapkamer is voorzien van elektrisch rolluik
* Moderne keuken met inbouwapparatuur
* Voorzien van vloerverwarming
* Tuin is mooi aangelegd en rustig gelegen
* Parkeergelegenheid op eigen grond
* Slaapkamer en badkamer op de begane grond
* Energielabel B
* Aanvaarding in overleg
* Bij verkoop hanteren wij een NVM koopakte model 2023
* Makelaardij Van der Linden
Het verkoopproces verloopt in zijn geheel via MOVE.nl en daarmee ook het biedingsproces. Biedingen dienen via MOVE te worden ingediend. U ontvangt op het moment dat u een afspraak voor bezichtiging maakt, inloggegevens voor een MOVE account. Via dat account kunt u alle benodigde informatie en documenten inzien en, indien gewenst, een bod uitbrengen.
Deze informatie is door ons met de nodige zorgvuldigheid samengesteld. Onzerzijds wordt echter geen enkele aansprakelijkheid aanvaard voor enige onvolledigheid, onjuistheid of anderszins, dan wel de gevolgen daarvan. Alle opgegeven maten en oppervlakten zijn indicatief.
