Leuke Tussenwoning in het Groene De Laren – Almere Haven
In de geliefde, bosrijke wijk De Laren in Almere Haven staat deze mooie en goed onderhouden eengezinswoning met berging. De woning beschikt over 4 slaapkamers, een uitgebouwde woonkamer en een zonnige tuin op het zuidwesten, gelegen in een autoluwe straat.
De Wijk
De Laren staat bekend om zijn groene, kindvriendelijke en rustige omgeving net buiten het centrum van Almere Haven. De woning ligt op korte afstand van het Kromslootpark, het Vroege Vogelbos en het recreatiegebied rond het Gooimeer. Dankzij de vele fiets- en wandelpaden zijn diverse natuur- en recreatiegebieden gemakkelijk te bereiken.
Lees verderVoorzieningen zoals winkels, supermarkten, scholen, gezondheidscentra en openbaar vervoer liggen op slechts enkele minuten afstand. De wijk is uitstekend bereikbaar via de A6, A1 en A27, met snelle verbindingen naar onder andere Amsterdam en Utrecht.
**De getoonde prijs van € 485.000,- k.k. dient te worden gezien als bieden vanaf prijs (starting price).**
Indeling
Begane grond:
Via de verzorgde voortuin bereikt u de entree van de woning. In de hal vindt u het moderne toilet, de meterkast, de trapopgang en de toegang tot de woonkamer.
De lichte en sfeervolle woonkamer is afgewerkt met een laminaatvloer. Door de uitbouw is de woonkamer maar liefst 6 meter diep. Via de openslaande deuren heeft u direct toegang tot de zonnige achtertuin op het zuidwesten.
Aan de voorzijde van de woning bevindt zich de open keuken in praktische L-opstelling, uitgerust met diverse inbouwapparatuur: een vaatwasser, combi oven/magnetron, gasfornuis, koelkast en vriezer.
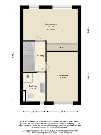
Eerste verdieping:
De ruime overloop biedt toegang tot twee slaapkamers van verschillende afmetingen en de nette badkamer. De badkamer is voorzien van een inloopdouche, een wastafelmeubel en een tweede toilet.
Tweede verdieping:
De royale zolderverdieping heeft twee slaapkamers, waarvan één is uitgerust met een airco. Er is tevens een aparte wasruimte met witgoedaansluitingen en de technische installaties.
Tuin:
De aangelegde achtertuin op het zuidwesten is volledig bestraat en beschikt over een berging en een achterom. De voortuin is ook lekker ruim, waardoor er voldoende ruimte is voor een gezellig terras.
Bijzonderheden:
• Bouwjaar 2016;
• Woonoppervlakte 122 m² (conform NEN2580 meetrapport);
• Airco in de slaapkamer op zolder en de woonkamer;
• 13 zonnepanelen;
• Energielabel A++;
• Fijne en rustige leefomgeving;
• Aanvaarding in overleg.
Kortom, deze charmante tussenwoning in het groene De Laren biedt alles wat je zoekt: een rustige locatie, ruime kamers, en een fijne buitenruimte om van te genieten. Of je nu wilt ontspannen in de zonnige tuin of een wandeling wilt maken door de natuur, deze woning biedt het perfecte thuis voor een comfortabel en groen leven. Kom snel kijken en ontdek zelf waarom deze woning zo bijzonder is!
