Wonen in een bosrijke omgeving – Ruime en stijlvolle twee-onder-een-kapwoning met veel privacy
Deze volledig vernieuwde twee-onder-een-kapwoning (2024) in de populaire wijk Noorderplassen-West in Almere Stad biedt alles wat je zoekt: een rustige, groene omgeving met volop privacy, terwijl je toch dichtbij de stad en haar voorzieningen woont. Pak je koffers en verhuis direct! De woning heeft een lichte woonkamer, een moderne eetkeuken, vier slaapkamers, een kinderspeelkamer, een vernieuwde badkamer en een aangebouwde garage. De achtertuin ligt op het zuiden en biedt de perfecte plek om van de zon en de natuur te genieten.
Woonomgeving en ligging
De woning ligt in een speels en groen opgezet woonerf, bestaande uit 24 woningen.
Lees verderDe straat is rustig, met een uniforme uitstraling en auto's gescheiden van de woningen, wat zorgt voor een vredig straatbeeld. Het woonerf heeft een actieve VvE die zorgt voor het onderhoud van de straten, het groen en de perken, zodat het karakter van het gebied behouden blijft. De VvE-bijdrage voor 2026 bedraagt €85 per maand.
Achterin de wijk gelegen, biedt de woning rust en privacy. Er is uitsluitend bestemmingsverkeer, en met de fiets ben je binnen 10 minuten in het bruisende centrum van Almere Stad, met voorzieningen zoals bioscopen, de schouwburg, bibliotheek, ziekenhuis en het NS-station. Daarnaast bevinden zich basisscholen, een supermarkt, gezondheidscentrum en twee jachthavens met ligplaatsen in de buurt. De uitvalswegen A6 en A1 zijn snel bereikbaar.
Indeling
Begane grond
De ruime hal biedt toegang tot de meterkast (met glasvezelaansluiting en 3-fase aansluiting), een vernieuwd toilet, de trap naar de verdieping en de woonkamer. De lichte woonkamer heeft een grote schuifpui naar de tuin, waardoor er veel natuurlijk licht binnenkomt. Er is genoeg ruimte voor een gezellige zithoek, en de nieuwe PVC-vloer met vloerverwarming verhoogt het comfort. De eetkeuken aan de voorzijde van de woning is een echte blikvanger, met een fantastisch kookeiland en moderne inbouwapparatuur: vaatwasser, koelkast/vriezer, 2de vriezer, kookplaat, ingebouwd koffiezetapparaat, stoomoven en combi-magnetron.
De garage is geïsoleerd, voorzien van een elektrische deur, elektra en heeft toegang tot de achtertuin.
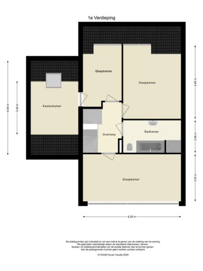
Eerste verdieping
Op de eerste verdieping bevinden zich vier kamers: drie slaapkamers en een speelkamer die ook uitstekend kan dienen als walk-in closet. De slaapkamers hebben veel lichtinval, en twee van de kamers aan de achterzijde zijn voorzien van een dakkapel (recent opnieuw bekleed). De badkamer, volledig vernieuwd in 2024, is een luxe ruimte met een dubbele regendouche, ligbad, dubbele wastafel, vrijhangend toilet en vloerverwarming.
Zolderverdieping
Op de tweede verdieping vind je een overloop met toegang tot de wasruimte en een vierde slaapkamer. De wasruimte is voorzien van aansluitingen voor witgoed, een spoelbak en biedt extra opbergruimte. De gehele verdieping is voorzien van een nette PVC-vloer.
Tuin en buitenruimte
De woning heeft een voortuin met voldoende parkeergelegenheid op eigen terrein. De achtertuin is in 2024 volledig vernieuwd en ligt gunstig op het zuiden, met veel privacy. De tuin heeft een terras, een overkapte bergruimte die is aangesloten aan de garage, en een prachtige overkapping met glazen pui, verlichting en een groen dak. Ook is er speciaal voor de kinderen gezorgd: een schommel en een ingebouwde trampoline. Zo kun je heerlijk genieten van het terras of de overkapping terwijl de kinderen zich vermaken in de tuin. De tuin is bereikbaar via de zij-entree, de garage of vanuit de woonkamer. Door de ligging aan de bosrand is het een rustige en groene plek, perfect om van de natuur te genieten.
Bijzonderheden:
- Rustig gelegen met vrij uitzicht (zowel voor als achter);
- Parkeren op eigen terrein;
- Aangebouwde geïsoleerde stenen garage met elektrische deur en toegang tot de tuin;
- Tuin op het zuiden met veel privacy;
- Energielabel A en stadsverwarming;
- Airco in de woonkamer en slaapkamers (2024);
- Perceeloppervlak: circa 223 m²;
- VvE-bijdrage: € 85,- per maand (2026);
- Nabij het stadscentrum van Almere en natuurgebieden zoals Noorderplassen en Pampushout;
- Alle denkbare voorzieningen in de omgeving;
- Deze woning wordt met een bieden vanaf prijs aangeboden;
- Oplevering in overleg.
Deze woning biedt een unieke combinatie van privacy, ruimte, en natuur, terwijl je toch dichtbij het centrum en alle voorzieningen van Almere Stad woont. Een ideale plek voor een gezin om rustig en comfortabel te wonen.
