Zeer ruime woning (6m x 11m) met dakterras (6m x 1,8m) gelegen in de geliefde wijk "Tussen de Vaarten", Almere-Stad
Deze royale eengezinswoning is gelegen in de populaire en kindvriendelijke woonwijk "Tussen de Vaarten" in Almere-Stad. De woning biedt een moderne keuken, vier slaapkamers en een zonnig dakterras op het zuidoosten. De ligging is ideaal, met diverse voorzieningen zoals een supermarkt, basisschool, kinderdagverblijf, gezondheidscentrum, bushaltes, sportschool op loopafstand en de uitvalswegen A6/A27 binnen handbereik.
Indeling begane grond:
Royale entree/hal met de meterkast, toilet, trapkast en toegang tot de ruime living. De lichte en ruime woonkamer geeft middels een tuindeur toegang tot een heerlijke achtertuin.
Lees verderDe keuken heeft een rechte opstelling en is voorzien van diverse inbouwapparatuur waaronder een vaatwasser, kookplaat, combi-oven, afzuigschouw en koelkast. De woonkeuken met erker heeft voldoende ruimte voor een royale eethoek. De woonkamer en keuken hebben een gezamenlijk woonoppervlakte van maar liefst 50m² en de vloer is afgewerkt met eikenhouten lamelparket. Via de trap in de hal bereikt u de eerste verdieping.
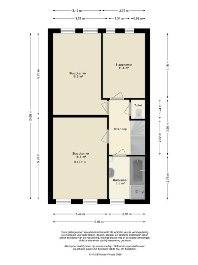
1e verdieping:
Overloop met separate toiletruimte en toegang tot 3 royale slaapkamers. De badkamer is uitgevoerd met lichte betegeling tot het plafond, douche, ligbad, wastafel en een raam voor extra ventilatie. De gehele verdieping is voorzien van een nette laminaatvloer. Via de open trap op de overloop bereikt u de 2e verdieping.
2e verdieping:
Voorzolder met aansluiting voor wasmachine- en droger en toegang tot de 4e grote, lichte slaapkamer met dakterras. Het dakterras (11 m2) is gelegen op het zuidoosten en heeft vrij uitzicht aan de voorzijde. Door het plaatsen van bijvoorbeeld een dakkapel kan er meer stahoogte worden gecreëerd. Het is dus zeer eenvoudig om op deze verdieping een extra slaapkamers te realiseren. Ook hier is de verdiepingsvloer voorzien van een nette laminaatvloer.
Tuin:
De zonnige achtertuin is gelegen op het noordwesten, ideaal als u op zomerse dagen ook ná uw werk nog van de zon wilt genieten. De tuin is verder voorzien van sierbestrating, plantenborders, houten berging (15 m2) en achterom.
Enkele kenmerken van deze woning:
- Let op! Deze woning wordt aangeboden middels een bieden vanaf prijs;
- Maar liefst 6 meter breed en 11 meter lang en VEEL RUIMER dan de buitenkant doet vermoeden!
- Op loopafstand scholen, supermarkt, gezondheidscentrum en openbaar vervoer en dichtbij de uitvalswegen A6/A27;
- 2e verdieping met zonnig, groot dakterras en de mogelijkheid voor een extra slaapkamer;
- Woonoppervlakte 158 m2, inhoud ca. 542 m3;
- Perceeloppervlakte 176 m2, bouwjaar 2001;
- Zeer grote schuur 4 meter x 3,6 meter;
- Nieuwe schutting van 2023 en 2025;
- Oplevering in overleg / kan snel.
Kortom: een unieke, zéér ruime eengezinswoning, gelegen in een gewilde wijk van Almere-Stad.
Interesse?
Bezichtigingen kunnen worden aangevraagd via Funda of onze website. We plannen bezichtigingen op volgorde van aanmelding.
