Instapklare twee-onder-een-kapwoning in rustige Faunabuurt
Welkom in Pandabeerstraat 13: een sfeervolle en goed onderhouden twee-onder-een-kap gezinswoning met eigen parkeergelegenheid, grote garage en een verzorgde tuin met achterom. De woning ligt in een doodlopend straatje in de geliefde Faunabuurt, wat zorgt voor rust, veiligheid en een prettige, kindvriendelijke leefomgeving.
De woning is gebouwd in 1995 en beschikt over een woonoppervlakte van ca. 102 m² op een perceel van 211 m². Met 3 ruime slaapkamers (4e mogelijk), een moderne afwerking en diverse recente verbeteringen is dit een woning waar je zó in kunt. Het energielabel B is met een kleine investering aan te passen naar een A label!
Bieden vanaf € 495.000,- k.k.
Lees verderLigging & omgeving
De Faunabuurt is populair vanwege de rustige opzet, het groene karakter en de centrale ligging in Almere Buiten. In de directe omgeving vind je het centrum van Almere Buiten, Doemere, scholen, speeltuinen, supermarkten en openbaar vervoer. Uitvalswegen richting Amsterdam zijn snel bereikbaar; binnen circa 20 minuten sta je in de stad. Een ideale combinatie van rust en bereikbaarheid.
Indeling
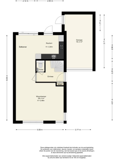
Begane grond
De entree geeft toegang tot de hal met toilet en trapopgang. De woonkamer is licht en sfeervol en staat in open verbinding met de semi-open keuken.
De begane grond is strak afgewerkt, volledig gestukt en voorzien van een laminaatvloer met vloerverwarming – comfortabel en stijlvol.
Vanuit de keuken is er via de doorloopdeur en schuifpui toegang tot de achtertuin.
Eerste verdieping
Op de eerste verdieping bevinden zich twee ruime slaapkamers en de badkamer.
De dakkapel aan de achterzijde (2014) zorgt hier voor extra ruimte en veel lichtinval.
De moderne badkamer (2014) is compleet uitgevoerd met: toilet, inloopdouche en wastafelmeubel. Alles in een frisse en tijdloze afwerking.
Met een slimme indeling is hier eenvoudig een extra slaapkamer, werk- of hobbyruimte te realiseren.
Zolderverdieping
De zolder is ingericht als derde slaapkamer en is dankzij een groot Velux dakraam heerlijk licht.
Daarnaast beschikt deze verdieping over: opstelplaats voor wasmachine en droger, bergruimte achter de knieschotten.
Buitenruimte
De achtertuin is verzorgd aangelegd met tegels, schuttingen en een buitenkraan. Dankzij de achterom is de tuin ook praktisch bereikbaar. Een fijne plek om te ontspannen of om kinderen veilig buiten te laten spelen.
Garage & parkeren
Een groot pluspunt is de ruime garage, voorzien van: elektrische roldeur, deur naar de achtertuin.
Daarnaast parkeer je comfortabel op eigen terrein.
Bijzonderheden
Gelegen in de geliefde Faunabuurt
Doodlopend straatje: rustig en kindvriendelijk
Parkeren op eigen terrein
Grote garage met elektrische roldeur en toegang tot de tuin
Mogelijkheid tot 4e slaapkamer
Dakkapel eerste verdieping achterzijde (2014)
Kunststof kozijnen (2020)
Oplevering in overleg
Kortom: een comfortabele, instapklare gezinswoning op een rustige en fijne locatie, met verrassend veel ruimte en mogelijkheden.
Maak snel een afspraak voor een bezichtiging en ontdek zelf wat Pandabeerstraat 13 jou te bieden heeft!
