Creëer jouw eigen droomappartement in Almere Haven
Marktgracht 64 - casco, naar eigen smaak af te werken
Ben je op zoek naar een modern appartement dat je nog helemaal naar eigen wens kunt inrichten? Dit is jouw kans!
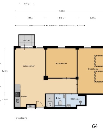
Dit ruime 3-kamerappartement van ca. 67 m² ligt op de eerste verdieping en is onderdeel van een recente transformatie in Almere Haven. Hier heb je de vrijheid om het appartement volledig af te werken zoals jij dat wilt. Het appartement is te bereiken met de lift of via het ruim bemeten trappenhuis.
Wonen met licht, ruimte en volop mogelijkheden
De indeling van dit appartement is optimaal: een royale woonkamer met open keukenopstelling, twee goede slaapkamers, een nette badkamerruimte en apart toilet.
Lees verderVia de woonkamer heb je toegang tot een eigen balkon van ca. 2,3 m², waar je heerlijk buiten kunt zitten.
Casco oplevering of volledig afgewerkt (zie impressies), de keuze is aan jou.
Dit appartement wordt casco opgeleverd:
• In de badkamer zijn alle aansluitingen aanwezig, ook de douchegoot en inbouwreservoir tbv het toilet zijn aanwezig.
• Je kiest zelf de keuken, vloer, wandafwerking en sanitair.
• Of je kiest (tegen meerprijs) voor één van de aantrekkelijke afwerkpakketten waarmee het appartement luxe wordt afgewerkt inclusief badkamer, toilet, keuken, vloeren, plinten, verlichting en gesauste wanden en plafond.
Zo maak je van dit appartement jouw eigen thuis, helemaal naar jouw stijl en budget.
Duurzaam en comfortabel wonen
• Voorzien van vloerverwarming én koeling via een centrale warmtepomp: altijd een aangenaam binnenklimaat.
• Uitgevoerd met HR++ glas voor uitstekende isolatie.
• Elektrische boiler voor warm water.
• Het complex is modern en energiezuinig getransformeerd, met oog voor detail en hoogwaardige afwerking van de algemene ruimtes.
Direct beschikbaar!
De transformatie is grotendeels afgerond, dus jij kunt hier snel intrekken.
Het appartement wordt casco opgeleverd, maar je kunt ook kiezen voor één van de aantrekkelijke turn-key afwerkpakketten. Zo realiseer je in korte tijd jouw eigen luxe, instapklare woning, helemaal naar jouw smaak.
De impressies en plattegrond geven alvast een uitstekend beeld. Wil je het appartement zelf ervaren en ontdekken hoe jij hier jouw droomplek kunt creëren? Plan dan direct een bezichtiging via nieuwbouw.almere@vanderlinden.nl of bel 036-5330077. Je bent van harte welkom!
Pluspunten op een rij:
• Ruim appartement van ca. 67 m² op de eerste verdieping
• Energielabel: A++
• Casco oplevering, met de mogelijkheid om te kiezen voor luxe turn-key afwerking
• Twee slaapkamers, ruime woonkamer en balkon van ca. 2,3 m²
• Voorzien van vloerverwarming en koeling
• Modern en energiezuinig complex op een mooie locatie in Almere Haven
Wonen in Almere Haven - sfeervol, modern en ontspannen
Almere Haven is een plek waar je elke dag het ultieme woongevoel ervaart. Hier woon je in een rustige, groene omgeving met water en gezellige straatjes, terwijl je toch alle voorzieningen dichtbij hebt. Flaneer over de boulevard langs het Gooimeer, geniet van een drankje op een terras of haal verse boodschappen op de wekelijkse markt.
De appartementen aan de Marktgracht passen perfect in dit plaatje. Ze combineren het comfort en de duurzaamheid van nieuw met de warme sfeer van het historische havenhart. Of je nu kiest voor casco appartement of liever gaat voor een luxe turn-key woning: hier woon je modern, energiezuinig en omgeven door alles wat het leven mooier maakt.
Almere Haven biedt het beste van twee werelden: een dorpse, gemoedelijke sfeer én de dynamiek van een jonge stad. Perfect voor wie houdt van ontspannen wonen met winkels, horeca, natuur en water op loopafstand.
Kortom: een heerlijke plek om thuis te komen.
