MARKTGRACHT 112 - ALMERE HAVEN
Ben je op zoek naar een nieuw, eigentijds appartement, maar wil je niet jaren wachten op een nieuwbouwproject? Dit is je kans!
Kom kijken naar dit volledig afgewerkte luxe appartement, en naar de andere laatst beschikbare appartementen van dit unieke transformatieproject.
Aan de Marktgracht in Almere Haven is een voormalig bedrijfspand getransformeerd tot 38 moderne appartementen met 2 of 3 kamers, variërend in grootte van 25 tot 67 vierkante meter.
Er zijn reeds 31 appartementen verkocht
Wil jij wonen in een modern, duurzaam en stijlvol appartement in het gezellige Almere Haven? Kom dan langs en ontdek het complex én enkele modelappartementen.
Lees verderOf je nu starter bent, een kleinere woning zoekt of gewoon een nieuwe plek wilt, er is voor ieder wat wils!
MARKTGRACHT 112
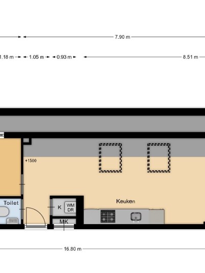
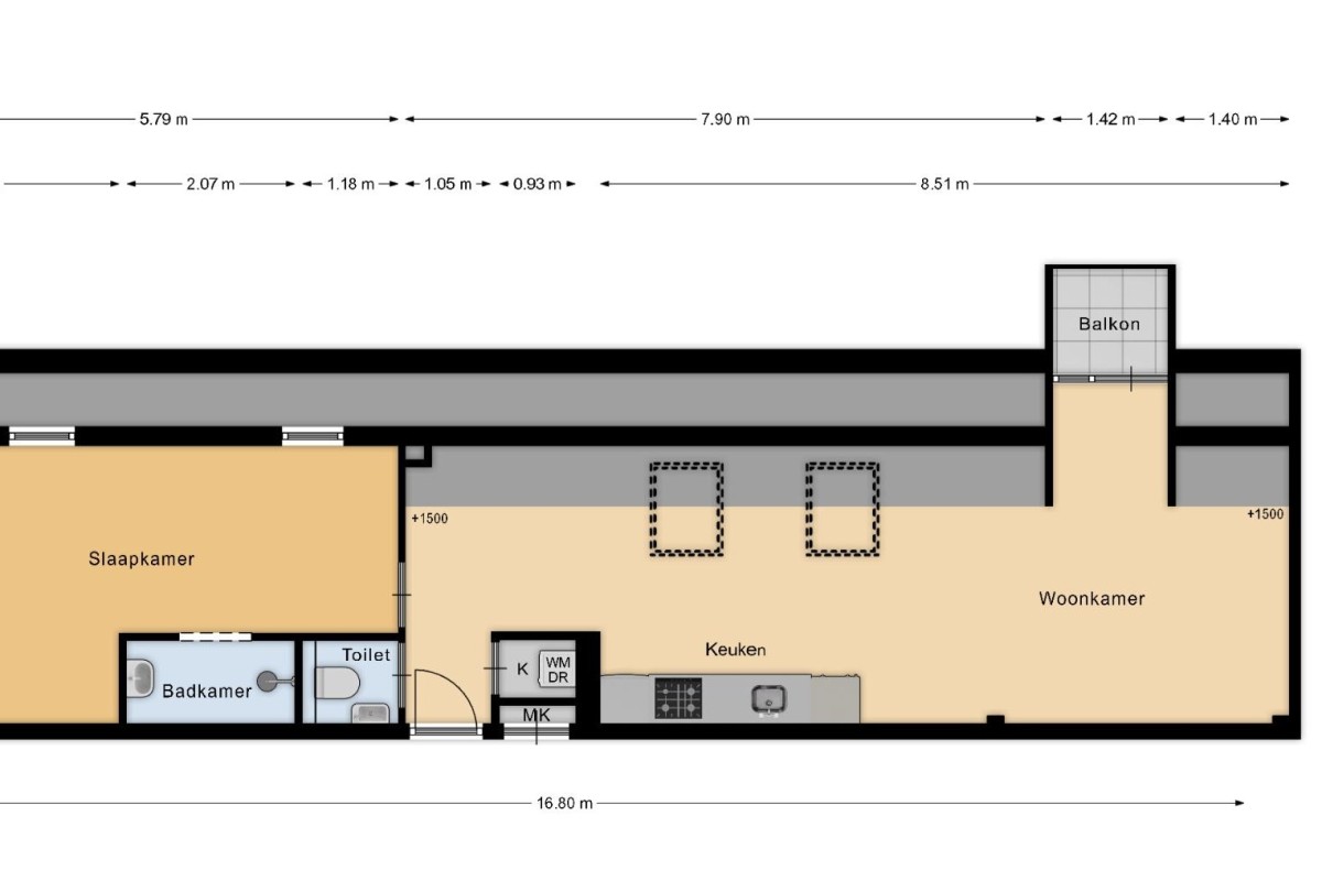
Dit mooie 2-kamer appartement is gelegen op de derde verdieping
Het appartement is Casco++ afgewerkt, Turn-key volledig afgewerkt met keuken, sanitair, vloer- en wandafwerking.
Bijzonderheden;
• 52,2 vierkante meter
• Gelegen op de 3e verdieping
• Koopsom € 338.286,- K.K.
• Vloerverwarming én koeling, aangesloten op een centrale warmtepomp.
• HR++ glas voor optimale isolatie.
• Een elektrische boiler voor warm water.
• 1 zonnepaneel die direct is aangesloten op de eigen meter.
De transformatie van het pand is grotendeels afgerond. De verdere afwerking wordt met oog voor detail uitgevoerd, waardoor de appartementen en algemene ruimtes een hoogwaardige, moderne uitstraling krijgen.
Heb je nog vragen of wil je een bezichtiging inplannen? Stuur dan een mail naar nieuwbouw.almere@vanderlinden.nl of bel naar 036-5330077.
